Bauernhof im Odenwald? Platz für Ihr Hobby oder Ihren Betrieb? Werden Sie kreativ in Reichelsheim!
Ansicht von obenStraßenansicht von rechtsStraßenansicht von linksHof Rückansicht Wohnhaus und AnbauHof Ansicht Scheune-Stall-GebäudeHof Ansicht Anbau-GarageAnsicht Haus u. HofEG EsszimmerEG WohnzimmerEG KücheOG FlurOG SchlafzimmerOG kleines ZimmerOG BadDG SchlafzimmerDG KücheDG WohnzimmerDG BadDachbodenKellerScheuneStallAnbau WerkstattLuftbild gesamtDGEGOGGGKGAnsicht gesamt von oben
Eckdaten
Zimmer
Wohnfl.
Grundst.
Kaufpreis
Zimmer
Wohnfl.
Grundst.
439000.0€ Kaufpreis
Basisdaten
Objektnummer
Immopark ID
IP-303254
Objekt ID
350051079-2746
Adresse
64385 Reichelsheim
Ort
64385 Reichelsheim
Fakten und Zahlen
Haustyp
Einfamilienhaus
Vermarktungsart
Kauf
Nutzungsart
wohnen
Verkaufsstatus
offen
Baujahr
1922
Kerndaten
Wohnfläche
204 m2
Zimmer
8.0
Schlafzimmer
5.0
Badezimmer
2.0
separate WC
1.0
Nutzfläche
250 m2
Grundstücksfläche
1.332 m2
Bauweise / Substanz
Etagenanzahl der Immobilie
3
Preisdaten
Preis
Kaufpreis
439.000 €
Courtage
Käufercourtage
3,57 %
Innen- / Außencourtage
inkl. MwSt.
Merkmale
Zimmer und Bereiche
Typ
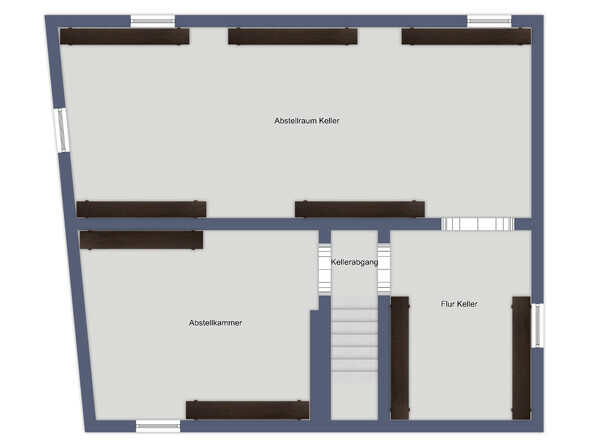
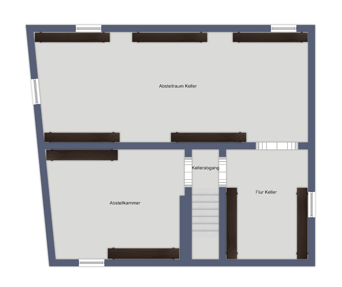
Voll unterkellert
Zimmer und Räume
Schlafzimmer
Zimmer und Räume
Abstellraum
Sanitäre Einrichtung
Sanitäre Einrichtung
Gäste WC
Energie
Energieausweis
Typ
Bedarfsausweis
EnEV
ab 01.05.2014 (gemäß EnEV 2014)
Energieausweis gültig bis
2035-11-06
Endenergiebedarf gemessen in kWh/(m²a)
229.48
A+ABCDEFGH
wesentlicher Energieträger
Elektro
Energieeffizienzklasse
G
Baujahr lt. Energieausweis
2009
Gebäudeart lt. Energieausweis
Wohngebäude
Heizung
Heizungsart
Zentralheizung
Befeuerungsart
Befeuerungsart
Luft-/Wasser-Wärmepumpe
Umgebung
Es wurden keine Daten angegeben.
Objektbeschreibung
Vielfältige Möglichkeiten zentral in Reichelsheim! Dieser ehemalige Bauernhof wartet auf Ihre Ideen: Ob Sie ein neues Domizil für Ihre große Familie benötigen, oder genug Platz für Ihr Gewerbe/Werkstatt/Hobby brauchen, hier finden Sie eine gute Grundlage für die Umsetzung Ihrer Ziele.
Das 1.332 m² große Grundstück wäre auch für eine Neubebauung mit Mehrfamilienhäusern oder betreutem Wohnen geeignet. - Kein Denkmalschutz!
Machen Sie sich am besten selbst ein Bild!
Ausstattung
Wohnhaus (ehemalige Gastwirtschaft im EG, jetzt 3 Wohnetagen und ausgebauter Dachboden, alter Gewölbekeller): Baujahr ca. 1922, Sanierungen ab den 1980er Jahren Massive Steinbauweise und Fachwerk ca. 200 m² Wohnfläche 9 Zimmer + bewohnbare Fläche im Dachboden 2 Bäder und 2 separate WCs 2 Küchen Innenausstattung hauptsächlich aus den 60er und 80er Jahren Holzdielen, doppelverglaste Holzfenster aus den 80ern Elektrik und Installationsrohre aus den 50er Jahren, nachgerüstet bis 2010 (Bad und Elektrik für Elektroheizung/Wärmepumpe/Klimageräte)
Scheune: Fachwerk, 17 x 8 m Außenmaße ehemalige Stallungen im EG, Heuboden und Lager im DG Dachfläche mit Photovoltaikanlage von 2007, 16 KWp Leistung
Garage/Nebengebäude: massiv gebautes Nebengebäude als Garage für Maschinen, Anhänger und Werkstatt + Lagerfläche, 12 x 6 m Außenmaße überdachte Anbauten für PKW und Kleintierställe, 15 x 6 m Außenmaße
Grundstücksanteil Hoffläche (bebaute Fläche und Freifläche Hof): 725 m² Gartenfläche/bebaubare Fläche hinter der Scheune: 607 m²
Lage
Die Immobilie befindet sich zentral in Reichelsheim. Für Familien mit Kindern ist die Lage ideal, da mehrere Kindergärten in unmittelbarer Nähe liegen. Auch die Reichenberg-Schule und die weiterführende Georg-August-Zinn-Schule ist nur einen kurzen Spaziergang entfernt, was den täglichen Schulweg für die Kleinen sehr angenehm macht. Für die Freizeitgestaltung stehen mehrere Spielplätze in der Umgebung zur Verfügung, die in wenigen Minuten zu Fuß erreichbar sind. Sportstätten mit einem regen Vereinsleben und das Reichelsheimer Freibad bieten zahlreiche Möglichkeiten für sportliche Aktivitäten. Die Nahversorgung ist durch Supermärkte wie Aldi, Netto, PENNY und EDEKA, die sich in der Nähe befinden, bestens gewährleistet. Auch Bäcker und kleinere Fachgeschäfte im Ortskern sind schnell erreichbar, was den täglichen Einkauf erleichtert. Eine gute Anbindung an den öffentlichen Nahverkehr ist durch die nahegelegene Bushaltestelle gegeben, die nur wenige Gehminuten entfernt ist. Für die gesundheitliche Versorgung sind Arztpraxen und Zahnärzte in der Nähe vorhanden. Die Umgebung bietet zudem eine Auswahl an Restaurants, Eiscafés, Pizzerias und Dönergrills.
Insgesamt bietet die Lage eine hervorragende Infrastruktur für Familien, die Wert auf eine kinderfreundliche Umgebung und eine gute Nahversorgung legen.
Lade Orte in der Umgebung
Sonstiges
Jeder RE/MAX Lizenz- oder Franchisenehmer ist ein rechtlich eigenständiges Unternehmen.
Diensteanbieter im Sinne des Telemediengesetzes (TMG): Volker Gruch Staatsstr. 2, 64668 Rimbach/Odenwald Tel: 06253-9476500, Email: volker.gruch @ remax.de, www.remax.de/volker-gruch Aufsichtsbehörde: Landratsamt Heppenheim, Gräffstr.5, 64646 Heppenheim UST-ID: DE255314305
Verbraucherinformationen: Online-Streitbeilegung gemäß Art. 14 Abs. 1 ODR-VO: Die Europäische Kommission stellt eine Plattform zur Online-Streitbeilegung (OS) bereit, die Sie hier finden: http://ec.europa.eu/consumers/odr/ .
Es wird ausgeübt: Maklertätigkeiten gem. §34c GewO: Erlaubnis zur Vermittlung des Abschlusses und Nachweis der Gelegenheit zum Abschluss von Verträgen über Grundstücke, grundstücksgleiche Rechte, Wohnräume und gewerbliche Räume.