Charmantes Einfamilienhaus in Top-Lage von Solingen mit Ausbaupotenzial!
HausansichtHausanaichtVordergartenDieleDieleFlurWohnzimmer1. Schalfzimmer2. SchlafzimmerKüche mit Ausgang zum Garten BadezimmerKellerKellerRückansichtRückansichtGrundriss KGGrundriss EGGrundriss DGHausansicht
Eckdaten
Zimmer
Wohnfl.
Grundst.
Kaufpreis
Zimmer
Wohnfl.
Grundst.
539000.0€ Kaufpreis
Basisdaten
Objektnummer
Immopark ID
IP-309924
Objekt ID
5165
Adresse
42699 Solingen
Ort
42699 Solingen
Fakten und Zahlen
Haustyp
Einfamilienhaus
Vermarktungsart
Kauf
Nutzungsart
wohnen
Verkaufsstatus
offen
Baujahr
1982
Kerndaten
Wohnfläche
100 m2
Zimmer
3.0
Schlafzimmer
2.0
Badezimmer
1.0
separate WC
1.0
Nutzfläche
30 m2
Grundstücksfläche
1.061 m2
Anzahl Stellplätze (gesamt)
4.0
Bauweise / Substanz
Objektzustand
gepflegt
Wohneinheiten
1.0
Verfügbarkeit
Verfügbar ab
nach Absprache
Preisdaten
Preis
Kaufpreis
539.000 €
Courtage
Käufercourtage
2,98 % inkl. gesetzl. MwSt. vom Kaufpreis, fällig nach notarieller Beurkundung
Innen- / Außencourtage
inkl. MwSt.
Merkmale
Zimmer und Bereiche
Typ
Teilweise unterkellert
Gesamtfläche
40 m2
Anzahl (Terrassen)
1.0
Zimmer und Räume
Schlafzimmer
Zimmer und Räume
Wasch- / Trockenraum
Ausstattung und Technik
Qualität der Ausstattung
standard
Sanitäre Einrichtung
Sanitäre Einrichtung
Gäste WC
Stellplätze
Anzahl Stellplätze (gesamt)
4.0
Stellplatzdetails
Freiplatz
Anzahl
3.0
Stellplatzdetails
Garage
Anzahl
1.0
Energie
Heizung
Heizungsart
Zentralheizung
Befeuerungsart
Befeuerungsart
Gas
Umgebung
Es wurden keine Daten angegeben.
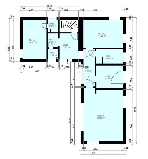
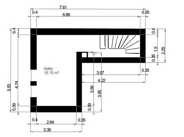
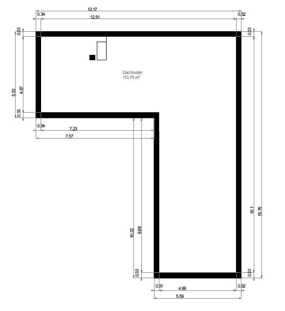
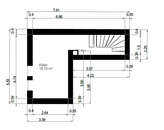
Objektbeschreibung
In einer der begehrtesten Wohnlagen von Solingen-Aufderhöhe präsentiert sich dieses charmante Einfamilienhaus, das im Jahr 1982 in massiver Bauweise einschließlich Satteldach erweitert wurde. Sämtliche Wohnräume befinden sich komfortabel auf einer Ebene, während die L-förmige Architektur eine besonders durchdachte und funktionale Raumaufteilung ermöglicht.
Mit einer Wohnfläche von ca. 100 m² bietet die Immobilie ideale Voraussetzungen für eine Familie mit Kind. Sollte zusätzlicher Platzbedarf bestehen, eröffnen sich attraktive Erweiterungsmöglichkeiten: Sowohl eine Vergrößerung im Erdgeschoss als auch der Ausbau der vorhandenen Ausbaureserve im Dachgeschoss sind realisierbar. Durch den Einbau von Dachgauben sowie zusätzlichen Dachflächenfenstern können hier weitere Wohnräume geschaffen werden, sodass künftig auch eine 4- bis 5-köpfige Familie ausreichend Platz findet. Das Ausbaupotenzial im Dachgeschoss beläuft sich auf ca. 50–70 m² und stellt zugleich eine hervorragende Möglichkeit zur nachhaltigen Wertsteigerung der Immobilie dar. Mögliche Erweiterungen im Erdgeschoss sind mit dem zuständigen Bauamt abzustimmen; erfahrungsgemäß lassen sich jedoch zusätzliche Flächen von etwa 40–60 m², gegebenenfalls sogar mehr, realisieren.
Das großzügige Grundstück mit ca. 1.061 m² überzeugt darüber hinaus mit einer weitläufigen Terrasse von rund 40 m² sowie viel Freiraum für Gartenliebhaber und Familien mit Kindern. Drei Außenstellplätze und eine Garage runden das komfortable Parkplatzangebot ab.
Haben wir Ihr Interesse geweckt? Gerne stehen wir Ihnen für weitere Informationen oder zur Vereinbarung eines Besichtigungstermins zur Verfügung.
Ausstattung
Die Immobilie präsentiert sich in einem gepflegten Zustand, bedarf jedoch einer Modernisierung, um heutigen Wohn- und Ausstattungsansprüchen vollständig gerecht zu werden. Ein wesentlicher Vorteil ist bereits gegeben: Die Heizungsanlage wurde im Jahr 2023 durch eine moderne und effiziente Gasbrennwertheizung erneuert.
Das Einfamilienhaus verfügt über eine Wohnfläche von ca. 100 m² und bietet darüber hinaus zusätzliche Ausbaureserven – sowohl am Haus selbst als auch im Dachboden. Ergänzt wird das Raumangebot durch eine Nutzfläche von ca. 30 m². Das großzügige Grundstück umfasst rund 1.061 m² und eröffnet vielfältige Nutzungsmöglichkeiten.
Insgesamt stehen drei Zimmer zur Verfügung, darunter zwei gut geschnittene Schlafzimmer. Ein Badezimmer sowie ein separates Gäste-WC sorgen für zusätzlichen Komfort im Alltag. Die Fenster sind in Holzrahmen gefasst und mit Isolierverglasung ausgestattet. Besonders hervorzuheben ist die großzügige Terrasse mit einer Fläche von ca. 40 m², die zum Entspannen und Verweilen im Freien einlädt. Für Fahrzeuge stehen drei Außenstellplätze sowie eine Garage zur Verfügung.
Insgesamt bietet dieses Einfamilienhaus hervorragendes Potenzial für individuelle Gestaltungs- und Modernisierungsideen und stellt eine ideale Gelegenheit für alle dar, die ein Zuhause in ruhiger und zugleich zentraler Lage suchen.
Ein Glasfaseranschluss ist vorbereitet.
Lage
Das Haus befindet sich in einer ruhigen und sehr begehrten Wohnlage von Solingen-Aufderhöhe. Einkaufsmöglichkeiten, Ärzte, Apotheken und öffentliche Verkehrsmittel sind bequem zu Fuß erreichbar. Familien profitieren von der Nähe zu Kindergärten (ca. 500 m) sowie Grund- und weiterführenden Schulen.
Dank der guten Anbindung an die Autobahn A3 und den Ohligser Hauptbahnhof eignet sich die Immobilie ideal für Berufspendler, die in Köln oder Düsseldorf arbeiten. Zudem bietet die Umgebung zahlreiche Möglichkeiten zur Freizeitgestaltung – sei es durch Spaziergänge in der Natur, sportliche Aktivitäten oder Ausflüge ins Bergische Land.
Lade Orte in der Umgebung
Sonstiges
Die Immobilie befindet sich in ruhiger, gewachsener Wohnlage im beliebten Solinger Stadtteil Aufderhöhe, einer der gefragtesten Wohnadressen der Klingenstadt. Die Umgebung ist überwiegend von gepflegter Ein- und Zweifamilienhausbebauung geprägt und bietet ein angenehmes, familienfreundliches Wohnumfeld mit geringem Durchgangsverkehr.
Einkaufsmöglichkeiten für den täglichen Bedarf, Bäckereien, Apotheken sowie Ärzte sind in kurzer Entfernung vorhanden und bequem erreichbar. Auch Schulen, Kindergärten und weitere Bildungseinrichtungen befinden sich im näheren Umfeld und unterstreichen die Attraktivität der Lage für Familien.
Die Verkehrsanbindung ist sehr gut: Über die nahegelegenen Autobahnen A3 und A46 bestehen schnelle Verbindungen in die umliegenden Städte wie Düsseldorf, Köln und Wuppertal. Zudem gewährleistet der öffentliche Nahverkehr eine gute Anbindung an die Solinger Innenstadt und benachbarte Stadtteile.
Grünflächen, Spazier- und Radwege sowie verschiedene Naherholungsgebiete in der Umgebung bieten einen hohen Freizeit- und Erholungswert und runden die Wohnlage ideal ab.