Ehem. Gasthof mit 365 m² Wohn-& Veranstaltungsfläche–vielseitig nutzbar als Wohnprojekt oder WG-Haus

Eckdaten

 Zimmer
 Wohnfl.
 Grundst.
Kaufpreis
 Zimmer
 Wohnfl.
 Grundst.

Kaufpreis

Basisdaten

Objektnummer
Immopark ID
IP-303329
Objekt ID
FALC-JuPi-76728
Adresse
Ort
51597 Morsbach
Fakten und Zahlen
Haustyp
Mehr­familien­haus
Vermarktungsart
Kauf
Nutzungsart
wohnen
Baujahr
1900
Kerndaten
Wohnfläche
365 m2
Zimmer
9.0
Schlafzimmer
6.0
Badezimmer
1.0
Grundstücksfläche
1.680 m2
Anzahl Stellplätze (gesamt)
3.0
Bauweise / Substanz
Objektzustand
teil- vollrenoviert
Etagenanzahl der Immobilie
3
Verfügbarkeit
Verfügbar ab
nach Vereinbarung

Preisdaten

Preis
Kaufpreis
399.000 €

Merkmale

Zimmer und Bereiche
Voll unterkellert
Gesamtfläche
15 m2
Anzahl (Balkone)
1.0
Anzahl (Terrassen)
1.0
Schlaf­zimmer
Abstell­raum
Ausstattung und Technik
Fliesen­boden
Lami­nat
Kunst­stoff­boden
Sanitäre Einrichtung
Fenster
Dusche
Wanne
Gäste WC
Stellplätze
Anzahl Stellplätze (gesamt)
3.0
Freiplatz
Garage
Anzahl
3.0

Energie

Energieausweis
Typ
Bedarfs­ausweis
EnEV
ab 01.05.2014 (gemäß EnEV 2014)
Energieausweis gültig bis
10.04.2035
Endenergiebedarf gemessen in kWh/(m²a)
251.7

A+ABCDEFGH

Energieeffizienz­klasse
H
Ausstelldatum
11.04.2025
Gebäudeart lt. Energieausweis
Wohngebäude
Heizung
Zentral­heizung

Umgebung

Es wurden keine Daten angegeben.

Objektbeschreibung

Manche Häuser erzählen Geschichten – vom Miteinander, vom Alltag, von besonderen Momenten. Der Lichtenberger Hof in Morsbach ist solch ein Ort: über Jahrzehnte hinweg Gasthof und Treffpunkt im Dorf, geprägt von Begegnungen, Herzlichkeit und Leben.
Nun steht das traditionsreiche Haus bereit für einen neuen Lebensabschnitt – diesmal nicht (nur) als Gaststätte, sondern als vielseitige Wohnimmobilie mit Charakter, Charme und enormem Potenzial.
Gesucht werden Menschen mit Ideen: für generationenübergreifendes Wohnen, gemeinschaftliche Lebenskonzepte, kreatives Arbeiten und Leben unter einem Dach – oder einfach ein Zuhause in ruhiger Lage, das mehr bietet als vier Wände.
Alternative Wohnkonzepte – Ihre Ideen, Ihr Raum
Der Lichtenberger Hof eignet sich ideal für ein Mehrfamilienhaus, da es durch die frühere Gastststätte viel Raum für Umbau bietet um sich dort völlig auzutoben.

Besonders hervorzuheben ist die klare Trennung von großzügigem Erdgeschoss (ehem. Gaststätte) und dem vollwertig ausgebauten Obergeschoss mit separater Wohnfläche.
Dieses Haus ist mehr als nur Stein und Holz – es ist ein Möglichkeitsraum. Für Menschen, die gemeinsam wohnen, sich entfalten oder Neues schaffen wollen. Ob Familienprojekt, gemeinschaftliches Wohnen oder Arbeiten und Leben unter einem Dach – der Lichtenberger Hof bietet die räumliche Freiheit und das emotionale Fundament dafür.

Ausstattung

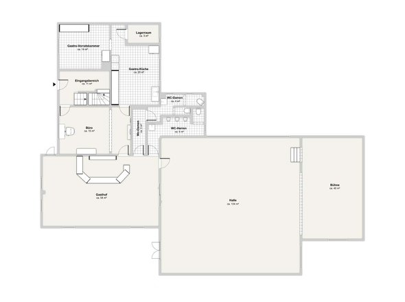
Erdgeschoss (ehem. Gewerbe):
• Großer Saal (ca. 100 m²) mit Bühne (ca. 30 m²) – flexibel teilbar
• Gemütlicher Gastraum mit Theke (ca. 120 m²) – ausbaubar zu Wohn- oder Arbeitsbereichen
• Große Küche mit Lager und Vorratsraum – potenziell als Gemeinschaftsküche oder Atelier nutzbar
• Gäste-WCs, Büro, Lagerflächen
• Zahlreiche Umnutzungsmöglichkeiten: vom Loft bis zur Atelierwohnung

Obergeschoss (bestehende Wohneinheit):
• Ca. 105 m² Wohnfläche
• Fünf Zimmer, Tageslichtbad mit Wanne und Dusche
• Ideal als Hauptwohnung oder zur Untervermietung

Technik & Zustand:
• Kunststofffenster mit Doppelverglasung
• Neue Dacheindeckung (2016)
• Moderne Gaszentralheizung mit Brennwerttechnik (2018)
• Gebäude in gutem Zustand mit solider Substanz

Außenbereich:
• Grundstück mit ca. 1.680 m²
• Sonniger Garten/Biergarten – ideal als Gemeinschaftsfläche, Spielplatz oder Gartenparadies
• Kellerräume und Speicher bieten reichlich Stauraum oder Ausbaupotenzial

Lage

Der Lichtenberger Hof befindet sich im ruhigen Ortsteil Lichtenberg, eingebettet in die malerische Landschaft des Naturparks Bergisches Land. Die Gemeinde Morsbach liegt an der Grenze zu Rheinland-Pfalz und ist bekannt für ihre landschaftliche Schönheit, intakte Dorfgemeinschaft und die Nähe zu Köln, Siegen und Bonn.

Besonders für Wohnprojekte interessant:
• Naturnähe bei gleichzeitig guter Anbindung
• Hohe Lebensqualität im Grünen
• Wanderwege, Radwege, Naherholung direkt vor der Haustür
• Freundliche Nachbarschaft, gewachsene Strukturen
Lade Orte in der Umgebung

Sonstiges

Die Immobilienbörsen kürzen Texte und begrenzen die Bilderanzahl! Fordern Sie unser komplettes Exposé per E-Mail oder telefonisch an. Bei Kontaktaufnahme bitten wir um Angabe Ihrer vollständigen Daten mit Adresse und Rufnummer.

Der Verkauf erfolgt für Kaufende PROVISIONSFREI !!!

Werte gemäß Gebäudeenergiegesetz (vormals: EnEV):

Energieausweistyp: Bedarf
gültig bis: 10.04.2025
Baujahr des Hauses: 1900
Baujahr der Heizung: 2018
Hauptenergieträger: Gas
Energiekennwert: 251,70 kWh/(m²*a)
Energieeffizienzklasse: H

Die Immobilienbörsen kürzen Texte und begrenzen die Bilderanzahl! Fordern Sie unser komplettes Exposé per E-Mail oder telefonisch an.

Wir bieten nicht nur eine kostenlose Hotline, sondern auch einen Service am Wochenende. Bei Interesse geben Sie bitte immer Ihre vollständigen Kontaktdaten an.

Sie wollen Ihre Immobilie ebenfalls professionell vermarkten, rufen Sie uns an, wir stehen Ihnen von Mo. bis So. von 6:00 – 22:00 Uhr persönlich zur Seite! Über 40.000 aktive Interessenten warten bereits auf Sie.

Als Immobilienexperten mit zahlreichen Auszeichnungen bieten wir Ihnen einen Service, der Sie als Verkäufer von Beginn an bis weit über den Notartermin hinaus begleitet. Mit unserer langjährigen Erfahrung und der hervorragenden Kenntnis des aktuellen Immobilienmarktes möchten wir gerne auch Sie bei Ihrem Verkauf unterstützen. Schenken Sie uns Ihr Vertrauen! Sie erreichen uns jederzeit unter der kostenfreien Rufnummer 0800 - 646 0 646.

Die Objektbeschreibung beruht ganz oder zum Teil auf Informationen der Eigentümer. Trotz sorgfältiger Prüfung übernimmt FALC Immobilien für die Richtigkeit oder Vollständigkeit der Angaben keine Gewähr.

Anbieterdaten

Gerhard Barden

Ansprech­partner

Gerhard Barden

Ihre Nachricht an FALC Immobilien Overath (Gerhard Barden)

Ihr Ansprechpartner: Gerhard Barden

Mit (*) gekennzeichnete Felder sind Pflichtangaben.