Dieses Fachwerk-Zweifamilienhaus aus dem Jahr 1850 bzw.1956 verbindet historischen Charme mit vielseitigen Nutzungsmöglichkeiten. Auf einem 184 m² großen Grundstück gelegen, bietet die Immobilie sowohl Raum für Selbstnutzung als auch für Vermietung.
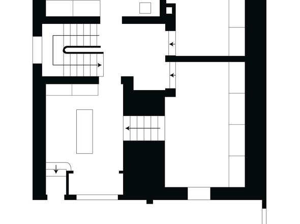
Die Wohnfläche von 115 m² verteilt sich derzeit auf 6 Zimmer. Durch einen Dachausbau oder Umgestaltung der Grundrisse können zusätzliche Flächen entstehen.
Ein kleiner Garten ermöglicht Zeit im Freien und sorgt für Privatsphäre. Zwei Außenstellplätze direkt am Haus sind verfügbar.
Die Fenster bestehen überwiegend aus Kunststoff, zweifach verglast mit Rollläden. In einigen Bereichen sind noch Holzfenster verbaut. Im Innenbereich sind Fliesen, Laminat und teilweise Parkett vorhanden.
Ein Teil der Immobilie wird von den Eigentümern selbst genutzt, der andere Teil ist vermietet.
Hier können Sie ein Projekt starten, eigene Wünsche einbringen, die Gestaltung individuell umsetzen oder direkt einziehen.
Das Fachwerkhaus bietet vielseitige Nutzungsmöglichkeiten, Flexibilität bei der Raumgestaltung und Potenzial zur Wertsteigerung durch einen Dachausbau oder Renovierungen. Eine Immobilie mit historischem Charme, die sich für Selbstnutzer und Anleger gleichermaßen eignet.
Ausstattung
*Fachwerk-Zweifamilienhaus mit historischem Charakter *6 Zimmer aktuell, weitere Zimmer möglich *Kleiner Garten *2 Außenstellplätze *Nutzflächen *Kunststofffenster mit Doppelverglasung und Rollläden, teilweise noch Holzfenster *Innenbereich mit Fliesen, Laminat und teilweise Parkett *Option zum Dachausbau für zusätzlichen Wohnraum *Teilweise vermietet, Teils Selbstgenutzt *Baujahr. ca.1850 Erweiterung und Ausbau 1956
Lage
Die Gemeinde Lichtenstein liegt im Bundesland Baden-Württemberg, im Landkreis Reutlingen, etwa 10 Kilometer südöstlich der Kreisstadt Reutlingen. Sie befindet sich am nordwestlichen Rand der Schwäbischen Alb und gehört zur Region Neckar-Alb.
Lichtenstein ist idyllisch im Tal der Echaz gelegen und wird von bewaldeten Höhenzügen umgeben, die typisch für die Mittelgebirgslandschaft der Schwäbischen Alb sind. Die Umgebung ist geprägt von Natur, Felsformationen und ausgedehnten Wäldern – ideal für Wanderer, Radfahrer und Naturfreunde. Bekannt ist der Ort vor allem durch das malerisch auf einem Felsen gelegene Schloss Lichtenstein, das auch als „Märchenschloss Württembergs“ gilt und ein beliebtes Ausflugsziel ist.
Die Gemeinde besteht aus mehreren Ortsteilen, darunter Honau, Holzelfingen und Unterhausen, wobei letzterer der größte Ortsteil ist. Durch die Bundesstraße B312 ist Lichtenstein verkehrstechnisch gut angebunden und ermöglicht eine schnelle Verbindung nach Reutlingen, Stuttgart sowie in Richtung Ulm.
Die Region bietet eine hohe Lebensqualität durch die Nähe zur Natur, gute Infrastruktur und vielfältige Freizeitmöglichkeiten. Zudem ist Lichtenstein Teil des Biosphärengebiets Schwäbische Alb, das für nachhaltige Entwicklung und Naturschutz steht.
Lade Orte in der Umgebung
Sonstiges
Da wir uns bei allen Angaben auf die Informationen Dritter stützen müssen, können wir keine Gewähr für deren Richtigkeit und Vollständigkeit übernehmen.
Bitte haben Sie Verständnis dafür, dass wir nur Anfragen mit vollständiger Adressangabe und erreichbarer Handynummer bearbeiten können.
Nachdem Ihre Anfrage per E-Mail bei uns eingegangen ist, werden wir uns mit Ihnen zur Abstimmung eines Besichtigungstermins in Verbindung setzen. Bitte nennen Sie deshalb in Ihrer E-Mail eine Tel.-Nr., unter der wir Sie sicher erreichen können.
Widerrufsbelehrung für Verbraucher: Sie haben das Recht, binnen vierzehn Tagen ohne Angabe von Gründen diesen Vertrag zu widerrufen. Die Widerrufsfrist beträgt vierzehn Tage ab dem Tag des Vertragsabschlusses.
Um Ihr Widerrufsrecht auszuüben, müssen Sie uns (Königskinder Immobilien GmbH, Königstraße 62, 70173 Stuttgart, Tel: 0711 4005440, Fax: 0711 40054433, info@koenigskinder.de) mittels einer eindeutigen Erklärung (z. B. ein mit der Post versandter Brief, Telefax oder E-Mail) über Ihren Entschluss, diesen Vertrag zu widerrufen, informieren.
Zur Wahrung der Widerrufsfrist reicht es aus, dass Sie die Mitteilung über die Ausübung des Widerrufsrechts vor Ablauf der Widerrufsfrist absenden.
Folgen des Widerrufs: Wenn Sie diesen Vertrag widerrufen, haben wir Ihnen alle Zahlungen, die wir von Ihnen erhalten haben, unverzüglich und spätestens binnen vierzehn Tagen ab dem Tag zurückzuzahlen, an dem die Mitteilung über Ihren Widerruf dieses Vertrags bei uns eingegangen ist. Für diese Rückzahlung verwenden wir dasselbe Zahlungsmittel, das Sie bei der ursprünglichen Transaktion eingesetzt haben, es sei denn, mit Ihnen wurde ausdrücklich etwas anderes vereinbart; in keinem Fall werden Ihnen wegen dieser Rückzahlung Entgelte berechnet.
Haben Sie verlangt, dass die Dienstleistungen während der Widerrufsfrist beginnen soll, so haben Sie uns einen angemessenen Betrag zu zahlen, der dem Anteil der bis zu dem Zeitpunkt, zu dem Sie uns von der Ausübung des Widerrufsrechts hinsichtlich dieses Vertrags unterrichten, bereits erbrachten Dienstleistungen im Vergleich zum Gesamtumfang der im Vertrag vorgesehenen Dienstleistungen entspricht.