Grüne Oase mit Charme: Ein - Zwei - Familienhaus für besondere Wohnmomente!

Eckdaten

 Zimmer
 Wohnfl.
 Grundst.
Kaufpreis
 Zimmer
 Wohnfl.
 Grundst.

Kaufpreis

Basisdaten

Objektnummer
Immopark ID
IP-311711
Objekt ID
LDW1.DI.10813
Adresse
Ort
73553 Alfdorf-Rienharz
Fakten und Zahlen
Haustyp
Zwei­familien­haus
Vermarktungsart
Kauf
Nutzungsart
wohnen
Verkaufsstatus
offen
Baujahr
1969
Kerndaten
Wohnfläche
130 m2
Zimmer
5.0
Nutzfläche
93,3 m2
Grundstücksfläche
736 m2
Verfügbarkeit
Verfügbar ab
sofort!

Preisdaten

Preis
Kaufpreis
450.000 €
Courtage
Käufercourtage
2,975 % inkl. MwSt. vom beurkundeten Kaufpreis

Merkmale

Zimmer und Bereiche
Voll unterkellert
Ausstattung und Technik
Kamin
Sanitäre Einrichtung
Gäste WC
Stellplätze
Freiplatz
Garage

Energie

Energieausweis
Typ
Bedarfs­ausweis
EnEV
ab 01.05.2014 (gemäß EnEV 2014)
Energieausweis gültig bis
2036-02-20
Endenergiebedarf gemessen in kWh/(m²a)
234.80

A+ABCDEFGH

wesentlicher Energieträger
Flüssiggas
Energieeffizienz­klasse
G
Baujahr lt. Energieausweis
2016
Gebäudeart lt. Energieausweis
Wohngebäude
Heizung
Zentral­heizung

Umgebung

Es wurden keine Daten angegeben.

Objektbeschreibung

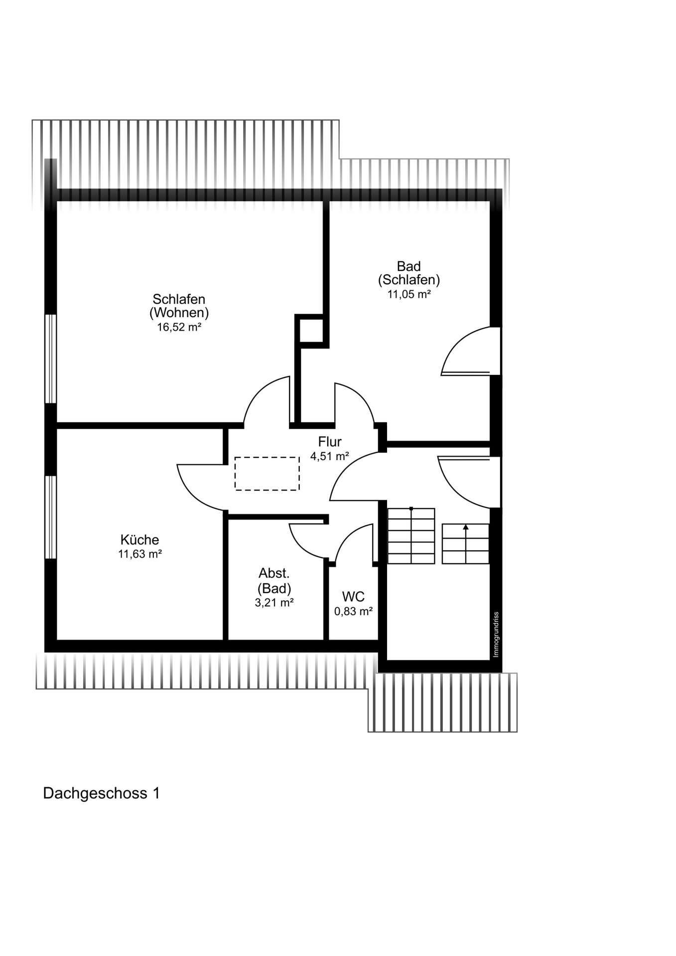
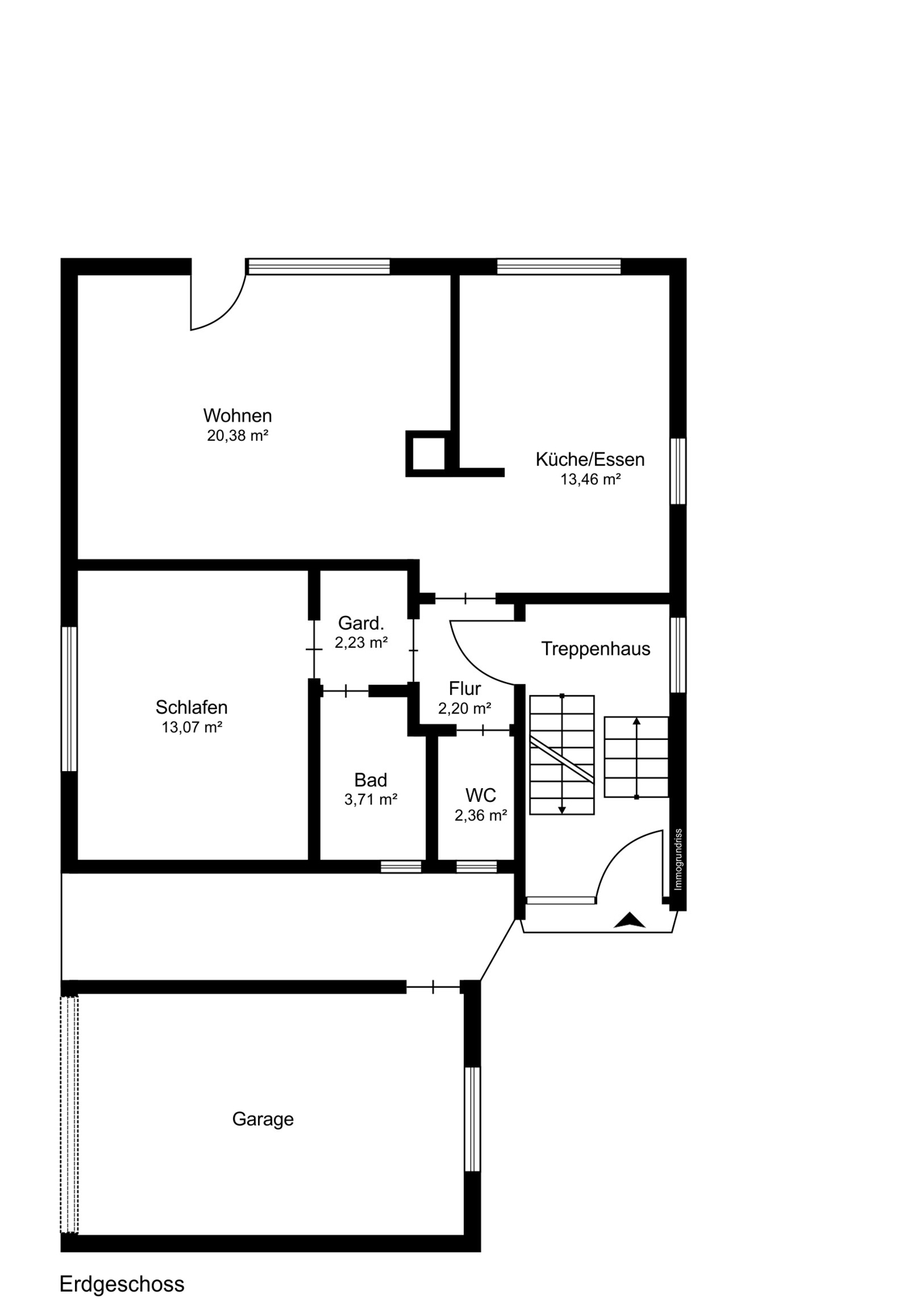
Bei der angebotenen Immobilie handelt es sich um ein charmantes Ein - Zwei - Familienhaus aus dem Baujahr 1969, gelegen auf einem großzügigen Grundstück mit ca. 736 m². Die Gesamtwohnfläche beträgt ca. 130 m² und verteilt sich auf zwei separate Wohneinheiten, die gemäß WEG aufgeteilt sind.

Die Erdgeschosswohnung bietet ca. 57 m² Wohnfläche, die Dachgeschosswohnung ca. 73 m². Beide Einheiten stehen derzeit leer und eröffnen somit flexible Nutzungsmöglichkeiten – ideal für Eigennutzer, Mehrgenerationenwohnen oder Kapitalanleger.

Ein besonderes Ausstattungsmerkmal sind die zwei offenen Holzkamine – jeweils einer pro Wohneinheit – die für eine behagliche Wohnatmosphäre sorgen. Das Haus ist voll unterkellert und bietet dadurch zusätzliche Nutz- und Abstellflächen. Im Untergeschoss befindet sich zudem ein beheizter Hobbyraum, der sich ideal als Arbeits-, Fitness- oder Freizeitbereich nutzen lässt.

Modernisierungen wurden in der Dachgeschosswohnung vorgenommen: Dort wurden unter anderem die elektrischen Leitungen sowie die Fenster erneuert. Zusätzlich erfolgten im Innenbereich weitere Modernisierungsmaßnahmen, sodass sich diese Einheit bereits in einem zeitgemäßeren Zustand präsentiert.

Der großzügige Garten bietet vielfältige Nutzungsmöglichkeiten und viel Platz zur individuellen Gestaltung. Zwei Außenstellplätze sowie eine Garage runden das Angebot ab und sorgen für komfortable Parkmöglichkeiten direkt am Haus.

Insgesamt präsentiert sich die Immobilie als solide Basis mit Charme und attraktivem Entwicklungspotenzial.

Ausstattung

* Ein - Zwei - Familienhaus (WEG-aufgeteilt)

* Baujahr 1969

* Ca. 130 m² Wohnfläche

* Grundstück ca. 736 m²

* Voll unterkellert

* Beheizter Hobbyraum im Keller

* Holzpelletofen im Erdgeschoss

* Holzofen im Dachgeschoss

* Moderne Gas-Brennwert-Zentralheizung

* Eigener Gastank im Vorgarten (Eigentum, freie Lieferantenwahl)

* Heizungsrohre und Wasserleitungen erneuert und gedämmt

* Heizkörper und Verrohrung im Zuge der Heizungsmodernisierung erneuert

* Elektrik vollständig erneuert (inkl. Zählerschrank & Verteilerkästen)

* LAN-Verkabelung pro Stockwerk

* TV-Anschlüsse pro Etage

* Glasfaseranschluss im Keller (Hausanschluss vorbereitet)

* Fenster teilweise erneuert (v. a. 1. OG & DG)

* Abschließbare Fenster im DG 1 & DG 2

* Sicherheitsverglasung im DG 2 sowie an Balkontüren im DG 1 & DG 2

* Neue Eiche-Massivholztreppe

* Eichenparkett in fast allen Wohnbereichen

* Parkett im DG 1 & DG 2 neu verlegt

* Edelputz im 1. OG & DG sowie im Wohnzimmer (EG)

* Abgehängte Decken mit integrierten LED-Spotlights

* Großer Garten

* Zwei Außenstellplätze

* Eine Garage

* Beide Wohneinheiten leerstehend

Lage

Die Immobilie befindet sich im idyllischen Teilort Rienharz der Gemeinde Alfdorf im Ostalbkreis, eingebettet in die reizvolle Landschaft von Baden-Württemberg. Die naturnahe Umgebung zeichnet sich durch weitläufige Wiesen, Wälder und eine ruhige, gewachsene Wohnstruktur aus und bietet ein hohes Maß an Lebensqualität.

Rienharz verbindet ländliche Ruhe mit einer guten Erreichbarkeit der umliegenden Orte. Ein Kindergarten befindet sich direkt im Ort. Die Grundschule im Ortsteil Pfahlbronn ist bequem mit dem Schulbus erreichbar. Einkaufsmöglichkeiten des täglichen Bedarfs, Ärzte sowie weitere Infrastruktur befinden sich sowohl im nahegelegenen Ortszentrum von Alfdorf als auch im nur ca. 3 km entfernten Welzheim.

Die Verkehrsanbindung ermöglicht eine zügige Erreichbarkeit der umliegenden Städte im Ostalbkreis sowie der wirtschaftsstarken Regionen im Großraum Stuttgart.

Besonders hervorzuheben ist der hohe Freizeitwert der Lage: Der Eisenbachstausee ist fußläufig erreichbar und lädt zu erholsamen Spaziergängen ein. Mit dem Fahrrad gelangt man bequem zum Aichstrutsee sowie zum beliebten Freizeitpark Schwaben Park. Darüber hinaus befinden sich Langlauf-Loipen in direkter Umgebung und bieten in den Wintermonaten ideale Bedingungen für Wintersportbegeisterte.

Die Kombination aus ruhigem, familienfreundlichem Umfeld, guter Infrastruktur und vielseitigen Freizeitmöglichkeiten macht diese Lage besonders attraktiv für Familien, Naturliebhaber und alle, die entspanntes Wohnen im Grünen schätzen.
Lade Orte in der Umgebung

Sonstiges

Da wir uns bei allen Angaben auf die Informationen Dritter stützen müssen, können wir keine Gewähr für deren Richtigkeit und Vollständigkeit übernehmen.

Bitte haben Sie Verständnis dafür, dass wir nur Anfragen mit vollständiger Adressangabe und erreichbarer Handynummer bearbeiten können.

Nachdem Ihre Anfrage per E-Mail bei uns eingegangen ist, werden wir uns mit Ihnen zur Abstimmung eines Besichtigungstermins in Verbindung setzen. Bitte nennen Sie deshalb in Ihrer E-Mail eine Tel.-Nr., unter der wir Sie sicher erreichen können.

Widerrufsbelehrung für Verbraucher:
Sie haben das Recht, binnen vierzehn Tagen ohne Angabe von Gründen diesen Vertrag zu widerrufen. Die Widerrufsfrist beträgt vierzehn Tage ab dem Tag des Vertragsabschlusses.

Um Ihr Widerrufsrecht auszuüben, müssen Sie uns (Königskinder Immobilien GmbH, Königstraße 62, 70173 Stuttgart, Tel: 0711 4005440, Fax: 0711 40054433, info@koenigskinder.de) mittels einer eindeutigen Erklärung (z. B. ein mit der Post versandter Brief, Telefax oder E-Mail) über Ihren Entschluss, diesen Vertrag zu widerrufen, informieren.

Zur Wahrung der Widerrufsfrist reicht es aus, dass Sie die Mitteilung über die Ausübung des Widerrufsrechts vor Ablauf der Widerrufsfrist absenden.

Folgen des Widerrufs:
Wenn Sie diesen Vertrag widerrufen, haben wir Ihnen alle Zahlungen, die wir von Ihnen erhalten haben, unverzüglich und spätestens binnen vierzehn Tagen ab dem Tag zurückzuzahlen, an dem die Mitteilung über Ihren Widerruf dieses Vertrags bei uns eingegangen ist. Für diese Rückzahlung verwenden wir dasselbe Zahlungsmittel, das Sie bei der ursprünglichen Transaktion eingesetzt haben, es sei denn, mit Ihnen wurde ausdrücklich etwas anderes vereinbart; in keinem Fall werden Ihnen wegen dieser Rückzahlung Entgelte berechnet.

Haben Sie verlangt, dass die Dienstleistungen während der Widerrufsfrist beginnen soll, so haben Sie uns einen angemessenen Betrag zu zahlen, der dem Anteil der bis zu dem Zeitpunkt, zu dem Sie uns von der Ausübung des Widerrufsrechts hinsichtlich dieses Vertrags unterrichten, bereits erbrachten Dienstleistungen im Vergleich zum Gesamtumfang der im Vertrag vorgesehenen Dienstleistungen entspricht.

Anbieterdaten

Dina Ismail

Ansprech­partner

Dina Ismail

Ihre Nachricht an Königskinder Immobilien GmbH

Ihr Ansprechpartner: Dina Ismail

Mit (*) gekennzeichnete Felder sind Pflichtangaben.