Hochwertige Eigentumswohnungen in Nürtingen-Neckarhausen! Ruhig, angenehm und komfortabel Leben!

Eckdaten

 Zimmer
 Wohnfl.
 Grundst.
Kaufpreis
 Zimmer
 Wohnfl.
Grundst.

Kaufpreis

Basisdaten

Objektnummer
Immopark ID
IP-288777
Objekt ID
LDW1.AHO.10129
Adresse
Ort
72622 Nürtingen / Neckarhausen
Fakten und Zahlen
Wohnungstyp
Etage
Vermarktungsart
Kauf
Nutzungsart
wohnen
Verkaufsstatus
offen
Kerndaten
Wohnfläche
98 m2
Zimmer
4.0
Schlafzimmer
3.0
Badezimmer
1.0
Bauweise / Substanz
Objektzustand
projektiert
Bauweise
Massivhaus

Preisdaten

Preis
Kaufpreis
626.000 €

Merkmale

Zimmer und Bereiche
Voll unterkellert
Schlaf­zimmer
Sanitäre Einrichtung
Gäste WC
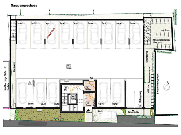
Stellplätze
Garage
Anzahl
14.0
Kaufpreis
25.000 €
Garten
Garten­nutzung

Energie

Heizung
Fußboden­heizung

Umgebung

Es wurden keine Daten angegeben.

Objektbeschreibung

Projektiertes Mehrfamilienhaus der Beate Schimek Wohnbau-Gerlingen! Hochwertige Bauweise, barrierefrei! – Keine Käuferprovision!
In der Lange Straße 13 in 72622 Nürtingen-Neckarhausen, baut Ihnen die "Beate Schimek Wohnbau" aus Gerlingen Ihren ganz persönlichen Wohlfühlort.
Hier entstehen lediglich 10 Wohnungen mit 14 Garagenstellplätzen, einer aufwendigen und modernen Dämmtechnik mit ökologischer und moderner Heizungsanlage sowie Aufzug und geräumige Kellerräume.
Das Bauvorhaben wird in massiver Bauweise in hoher Architekturqualität erstellt.
Es werden grundsätzlich nur Qualitätswerkstoffe verwendet. Ein aus der Nähe stammender Handwerkerkreis sichert die Bauqualität.
Diese Eigentumswohnungen bieten Ihnen ein echtes Zuhause mit Charakter. Helle, gut geschnittene Räume laden zum Wohlfühlen ein.
Stellen Sie sich vor, wie Sie gemütliche Abende im Wohnzimmer verbringen oder auf Ihrem Balkon/Ihrer Terrasse die Seele baumeln lassen.
Einige Wohnungen bieten Süd ‐ Aussichtslage, andere große, ruhige Terrassen mit Blick ins Grüne, also perfekter Wohngenuss.
Die Sonne gibt freien Lauf auf die Balkone und Terrassen nach Süden, Osten und Westen.
Die Wohnungen werden barrierefrei errichtet und sind somit ideal auch für Eigenheimbesitzer, die im nächsten Schritt eine altersgerechte und komfortable Wohnform suchen.
Die Wohnungen haben mit Flächen von 79 m² bis hin zu 109 m² sowie Terrasse/Balkon die optimale Größe für individuelle Bedürfnisse und bieten Platz für ein bis zwei Bewohner, die sich hier ein angenehmes und selbst bestimmtes Leben gestalten möchten.
----------------------------------------------------------------------------

Sie interessieren sich für eine andere der insgesamt nur 10 Wohnungen, welche noch besser zu Ihren Bedürfnissen passt?
Dann nehmen Sie unbedingt mit uns Kontakt auf! - Jetzt ist auch noch die Gelegenheit, Ihr Wunschobjekt individuell an ihre Bedürfnisse anzupassen!
Die Wohnungen werden barrierefrei für Ihren individuellen Komfort gestaltet. Erfüllen Sie sich Ihren Traum vom eigenen Zuhause in einer ruhigen und doch zentralen Lage von Nürtingen.
Nützen Sie jetzt noch die Gelegenheit, Ihre Wohnung noch individuell für ihre Bedürfnisse anzupassen.

Ausstattung

Was macht die Wohnungen attraktiv?
* Attraktives Raumkonzept
* Effizientes, ökologisches und hochwertiges Energiekonzept
* Personenaufzug zu allen Wohnungen
* Parkett in den Wohnräumen
* Fußbodenheizung in allen Wohnräumen
* Große Kinder‐/Arbeits‐ und Gästezimmer
* Homeoffice‐Arbeitsplatz mit Internetzugang, je nach Verfügbarkeit bis zu 1000Mbit/s.
* Feinsteinzeug, oder Fliesen in Küche, Sanitärräumen
* Thermostatregelung in jedem Wohnraum
* Jedes Zimmer mit TV-Anschluss sowie Telefonleerdose
* Moderne Medientechnik, Medienanschlüsse, Türöffner mit Sprechanlage, Videokamera und
Farbmonitor
* Weiße Innentüren, Edelstahlgriffe, ca. 2,10m hoch
* Moderne Schließanlage für alle relevanten Bereiche
* Wohnraumfenster auf der Süd‐ und Nordseite bodentief
* Großzügige, Ost‐West– Balkone, Südbalkone, DG Terrasse
* Gartenanteile für die Wohnungen im Erdgeschoss
* Außenwasserhahn an den EG-Wohnungen
* Alle Wohnungen sind über stufenfreier Zugang mit Aufzug im Erdgeschoss, direkt zu den Garagenplätzen
* Sanitärausstattung von Markenhersteller, die Sanitärobjekte können ergänzend individuell bemustert werden.
* Abluftanlage in jeder Wohnung
* Überwiegend großzügige Tageslichtbäder, separate Duschen
* Zusätzliche Abstellräume in verschiedenen Wohnungen
* Großer Abstellraum im Untergeschoss für jede Wohnung
* Aufstellflächen für Waschmaschine und Trockner im
Bad/WC/ Abstellraum
* Elektrisch betriebenes Garagentor mit Handsender
* Überdachte, ebenerdige Fahrradabstellplätze
* Außensteckdose an jedem Balkon
* Kreativ gestaltete Fassadendetails
* Balkone und Terrassen mit großformatigen
Feinsteinzeug‐Platten
* Die Geschäfte des täglichen Bedarfs in kurzer
Entfernung.

Lage

Neckarhausen liegt idyllisch am Neckar und bietet eine entspannte Wohnatmosphäre fernab des Großstadttrubels. Die Nähe zum Fluss und zur umliegenden Natur lädt zu Spaziergängen, Radtouren und anderen Freizeitaktivitäten im Freien ein.
Trotz der ruhigen Lage ist Neckarhausen gut an Nürtingen und die umliegenden Städte angebunden. Es gibt regelmäßige Busverbindungen wodurch Schulen, weiterführenden Bildungseinrichtungen, kulturelle Angebote und der Bahnhof Nürtingen schnell und bequem erreicht wird. Ebenfalls ist die Anbindung an die B313 sehr gut und leicht erreichbar. (2 km, 5 min Fahrzeit).
Neckarhausen hat seinen dörflichen Charme bewahrt, verfügt aber dennoch über eine solide Grundversorgung. Es gibt lokale Geschäfte für den täglichen Bedarf, die ärztliche Versorgung ist zudem fußläufig erreichbar. Ergänzend Kindergarten und Grundschule.
Neben den Naturerlebnissen am Neckar bieten Vereine und das Gemeinschaftsleben in Neckarhausen Möglichkeiten zur aktiven Freizeitgestaltung und sozialen Interaktion.
Lade Orte in der Umgebung

Sonstiges

Da wir uns bei allen Angaben auf die Informationen Dritter stützen müssen, können wir keine Gewähr für deren Richtigkeit und Vollständigkeit übernehmen.

Bitte haben Sie Verständnis dafür, dass wir nur Anfragen mit vollständiger Adressangabe und erreichbarer Handynummer bearbeiten können.

Nachdem Ihre Anfrage per E-Mail bei uns eingegangen ist, werden wir uns mit Ihnen zur Abstimmung eines Besichtigungstermins in Verbindung setzen. Bitte nennen Sie deshalb in Ihrer E-Mail eine Tel.-Nr., unter der wir Sie sicher erreichen können.

Widerrufsbelehrung für Verbraucher:
Sie haben das Recht, binnen vierzehn Tagen ohne Angabe von Gründen diesen Vertrag zu widerrufen. Die Widerrufsfrist beträgt vierzehn Tage ab dem Tag des Vertragsabschlusses.

Um Ihr Widerrufsrecht auszuüben, müssen Sie uns (Königskinder Immobilien GmbH, Königstraße 62, 70173 Stuttgart, Tel: 0711 4005440, Fax: 0711 40054433, info@koenigskinder.de) mittels einer eindeutigen Erklärung (z. B. ein mit der Post versandter Brief, Telefax oder E-Mail) über Ihren Entschluss, diesen Vertrag zu widerrufen, informieren.

Zur Wahrung der Widerrufsfrist reicht es aus, dass Sie die Mitteilung über die Ausübung des Widerrufsrechts vor Ablauf der Widerrufsfrist absenden.

Folgen des Widerrufs:
Wenn Sie diesen Vertrag widerrufen, haben wir Ihnen alle Zahlungen, die wir von Ihnen erhalten haben, unverzüglich und spätestens binnen vierzehn Tagen ab dem Tag zurückzuzahlen, an dem die Mitteilung über Ihren Widerruf dieses Vertrags bei uns eingegangen ist. Für diese Rückzahlung verwenden wir dasselbe Zahlungsmittel, das Sie bei der ursprünglichen Transaktion eingesetzt haben, es sei denn, mit Ihnen wurde ausdrücklich etwas anderes vereinbart; in keinem Fall werden Ihnen wegen dieser Rückzahlung Entgelte berechnet.

Haben Sie verlangt, dass die Dienstleistungen während der Widerrufsfrist beginnen soll, so haben Sie uns einen angemessenen Betrag zu zahlen, der dem Anteil der bis zu dem Zeitpunkt, zu dem Sie uns von der Ausübung des Widerrufsrechts hinsichtlich dieses Vertrags unterrichten, bereits erbrachten Dienstleistungen im Vergleich zum Gesamtumfang der im Vertrag vorgesehenen Dienstleistungen entspricht.

Anbieterdaten

Andreas Holzwarth

Ansprech­partner

Andreas Holzwarth

Ihre Nachricht an Königskinder Immobilien GmbH

Ihr Ansprechpartner: Andreas Holzwarth

Mit (*) gekennzeichnete Felder sind Pflichtangaben.