Ihr neues Wohnerlebnis beginnt hier: Traumhafte Eigentumswohnungen in Nürtingen-Neckarhausen!

Eckdaten

 Zimmer
 Wohnfl.
 Grundst.
Kaufpreis
 Zimmer
 Wohnfl.
 Grundst.

Kaufpreis

Basisdaten

Objektnummer
Immopark ID
IP-291389
Objekt ID
LDW1.AHO.10195
Adresse
Ort
72622 Nürtingen / Neckarhausen
Fakten und Zahlen
Renditeobjekt Typ
Mehr­familien­haus
Vermarktungsart
Kauf
Nutzungsart
wohnen
Verkaufsstatus
offen
Kerndaten
Wohnfläche
951 m2
Zimmer
39.0
Bauweise / Substanz
Objektzustand
projektiert
Bauweise
Massivhaus

Preisdaten

Preis
Kaufpreis
5.941.220 €
Courtage
Käufercourtage
Provisionsfrei

Merkmale

Zimmer und Bereiche
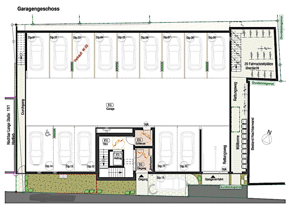
Voll unterkellert
Stellplätze
Garage
Anzahl
1.0
Kaufpreis
25.000 €

Energie

Heizung
Fußboden­heizung

Umgebung

Es wurden keine Daten angegeben.

Objektbeschreibung

Projektiertes Mehrfamilienhaus der Beate Schimek Wohnbau, mit 10 Wohnungen, 14 Garagenstellplätze, einer aufwendigen und modernen Dämmtechnik, mit ökologischer und moderner Heizungsanlage, ergänzt mit Photovoltaik-Anlage gemäß Gebäudeenergiegesetz, gewährleistet geringe Nebenkosten.
Die Fenster sind in 3 ‐ fach Wärmeschutzglas ausgeführt. Diese Eigentumswohnungen bieten Ihnen ein echtes Zuhause mit Charakter. Helle, gut geschnittene Räume laden zum Wohlfühlen ein. Stellen Sie sich vor, wie Sie gemütliche Abende im Wohnzimmer verbringen oder auf Ihrem Balkon/Ihrer Terrasse die Seele baumeln lassen und den Blick auf die Neckarauen genießen.
Einige Wohnungen bieten Süd ‐ Aussichtslage, andere große, ruhige Terrassen mit Blick ins Grüne, also perfekter Wohngenuss. Die Sonne gibt freien Lauf auf die Balkone und Terrassen nach Süden, Osten und Westen.
Das Portfolio der 10 Wohnungen reicht von der kompakten, nach LBO barrierefreien 3,5 ‐Zimmer‐Wohnung mit Südterrasse in oberster Etage in Aussichtslage mit ca. 83m² Wohnfläche bis zur großzügigen 4,5 ‐Zimmer‐Wohnung mit 103 m² Wohnfläche, mit 2 großen Ost‐West‐ Balkonen.
Diese Eigentumswohnungen sind mehr als nur ein Kauf – es ist eine Investition in Ihre Lebensqualität.
5 Wohnungen werden dabei barrierefrei ausgeführt. Erfüllen Sie sich Ihren Traum vom eigenen Zuhause in einer ruhigen und doch zentralen Lage von Nürtingen.

Ausstattung

Was macht die Wohnungen attraktiv?
attraktives Raumkonzept
Effizientes, ökologisches und hochwertiges Energiekonzept
Personenaufzug zu allen Wohnungen
Parkett in den Wohnräumen
Fußbodenheizung in allen Wohnräumen
große Kinder‐/Arbeits‐ und Gästezimmer
Homeoffice‐Arbeitsplatz mit Internetzugang, je nach Verfügbarkeit bis zu 1000Mbit/s.
Feinsteinzeug, oder Fliesen in Küche, Sanitärräumen
Thermostatregelung in jedem Wohnraum
jedes Zimmer mit TV Anschluss sowie Telefonleerdose
moderne Medientechnik, Medienanschlüsse
Türöffner mit Sprechanlage, Videokamera und Farbmonitor
Weiße Innentüren, Edelstahlgriffe, ca. 2,10m hoch
Moderne Schließanlage für alle relevanten Bereiche
Wohnraumfenster auf der Süd‐ und Nordseite bodentief
Großzügige, Ost‐West– Balkone, Südbalkone, DG Terrasse mit Aussicht auf Neckaraue
Gartenanteile für die Wohnungen im Erdgeschoss
Außenwasserhahn an den EG Wohnungen
Alle Wohnungen sind über stufenfreier Zugang mit Aufzug im Erdgeschoss, direkt zu den Garagenplätzen
Sanitärausstattung von Markenhersteller, die Sanitärobjekte können ergänzend individuell bemustert werden.
Abluftanlage in jeder Wohnung
Überwiegend großzügige Tageslichtbäder, separate Duschen
Zusätzliche Abstellräume in verschiedenen Wohnungen
Großer Abstellraum im Untergeschoss für jede Wohnung
Aufstellflächen für Waschmaschine und Trockner im Bad/WC/ Abstellraum
Elektrisch betriebenes Garagentor mit Handsender
Überdachte, ebenerdige Fahrradabstellplätze
Außensteckdose an jedem Balkon
Kreativ gestaltete Fassadendetails
Balkone und Terrassen mit großformatigen Feinsteinzeug‐Platten
die Geschäfte des täglichen Bedarfs in kurzer Entfernung.

Lage

Im gewachsenen Wohngebiet in Nürtingen ‐ Neckarhausen, zwei Kilometer westlich Nürtingens, entsteht ein besonderes Mehrfamilienhaus in bewährter Qualität in sonniger Ortslage. Die attraktive Architektur und moderne Bauweise mit attraktivem Raumkonzept bieten einen hervorragenden Wohnwert.
Die Raumzuordnungen sind durchdacht, der Wohnanspruch ist modern und großzügig.
Die großen Wohnungen sind auch für Familien mit Kindern sehr gut geeignet.
Lade Orte in der Umgebung

Sonstiges

Da wir uns bei allen Angaben auf die Informationen Dritter stützen müssen, können wir keine Gewähr für deren Richtigkeit und Vollständigkeit übernehmen.

Bitte haben Sie Verständnis dafür, dass wir nur Anfragen mit vollständiger Adressangabe und erreichbarer Handynummer bearbeiten können.

Nachdem Ihre Anfrage per E-Mail bei uns eingegangen ist, werden wir uns mit Ihnen zur Abstimmung eines Besichtigungstermins in Verbindung setzen. Bitte nennen Sie deshalb in Ihrer E-Mail eine Tel.-Nr., unter der wir Sie sicher erreichen können.

Widerrufsbelehrung für Verbraucher:
Sie haben das Recht, binnen vierzehn Tagen ohne Angabe von Gründen diesen Vertrag zu widerrufen. Die Widerrufsfrist beträgt vierzehn Tage ab dem Tag des Vertragsabschlusses.

Um Ihr Widerrufsrecht auszuüben, müssen Sie uns (Königskinder Immobilien GmbH, Königstraße 62, 70173 Stuttgart, Tel: 0711 4005440, Fax: 0711 40054433, info@koenigskinder.de) mittels einer eindeutigen Erklärung (z. B. ein mit der Post versandter Brief, Telefax oder E-Mail) über Ihren Entschluss, diesen Vertrag zu widerrufen, informieren.

Zur Wahrung der Widerrufsfrist reicht es aus, dass Sie die Mitteilung über die Ausübung des Widerrufsrechts vor Ablauf der Widerrufsfrist absenden.

Folgen des Widerrufs:
Wenn Sie diesen Vertrag widerrufen, haben wir Ihnen alle Zahlungen, die wir von Ihnen erhalten haben, unverzüglich und spätestens binnen vierzehn Tagen ab dem Tag zurückzuzahlen, an dem die Mitteilung über Ihren Widerruf dieses Vertrags bei uns eingegangen ist. Für diese Rückzahlung verwenden wir dasselbe Zahlungsmittel, das Sie bei der ursprünglichen Transaktion eingesetzt haben, es sei denn, mit Ihnen wurde ausdrücklich etwas anderes vereinbart; in keinem Fall werden Ihnen wegen dieser Rückzahlung Entgelte berechnet.

Haben Sie verlangt, dass die Dienstleistungen während der Widerrufsfrist beginnen soll, so haben Sie uns einen angemessenen Betrag zu zahlen, der dem Anteil der bis zu dem Zeitpunkt, zu dem Sie uns von der Ausübung des Widerrufsrechts hinsichtlich dieses Vertrags unterrichten, bereits erbrachten Dienstleistungen im Vergleich zum Gesamtumfang der im Vertrag vorgesehenen Dienstleistungen entspricht.

Anbieterdaten

Andreas Holzwarth

Ansprech­partner

Andreas Holzwarth

Ihre Nachricht an Königskinder Immobilien GmbH

Ihr Ansprechpartner: Andreas Holzwarth

Mit (*) gekennzeichnete Felder sind Pflichtangaben.