Interessante Anlage in Böblingen

Eckdaten

 Zimmer
 Wohnfl.
 Grundst.
Kaufpreis
 Zimmer
 Wohnfl.
 Grundst.

Kaufpreis

Basisdaten

Objektnummer
Immopark ID
IP-305287
Objekt ID
LDW1.NH.10497
Adresse
Ort
71034 Böblingen
Fakten und Zahlen
Haustyp
Mehr­familien­haus
Vermarktungsart
Kauf
Nutzungsart
wohnen
Verkaufsstatus
offen
Baujahr
1965
Kerndaten
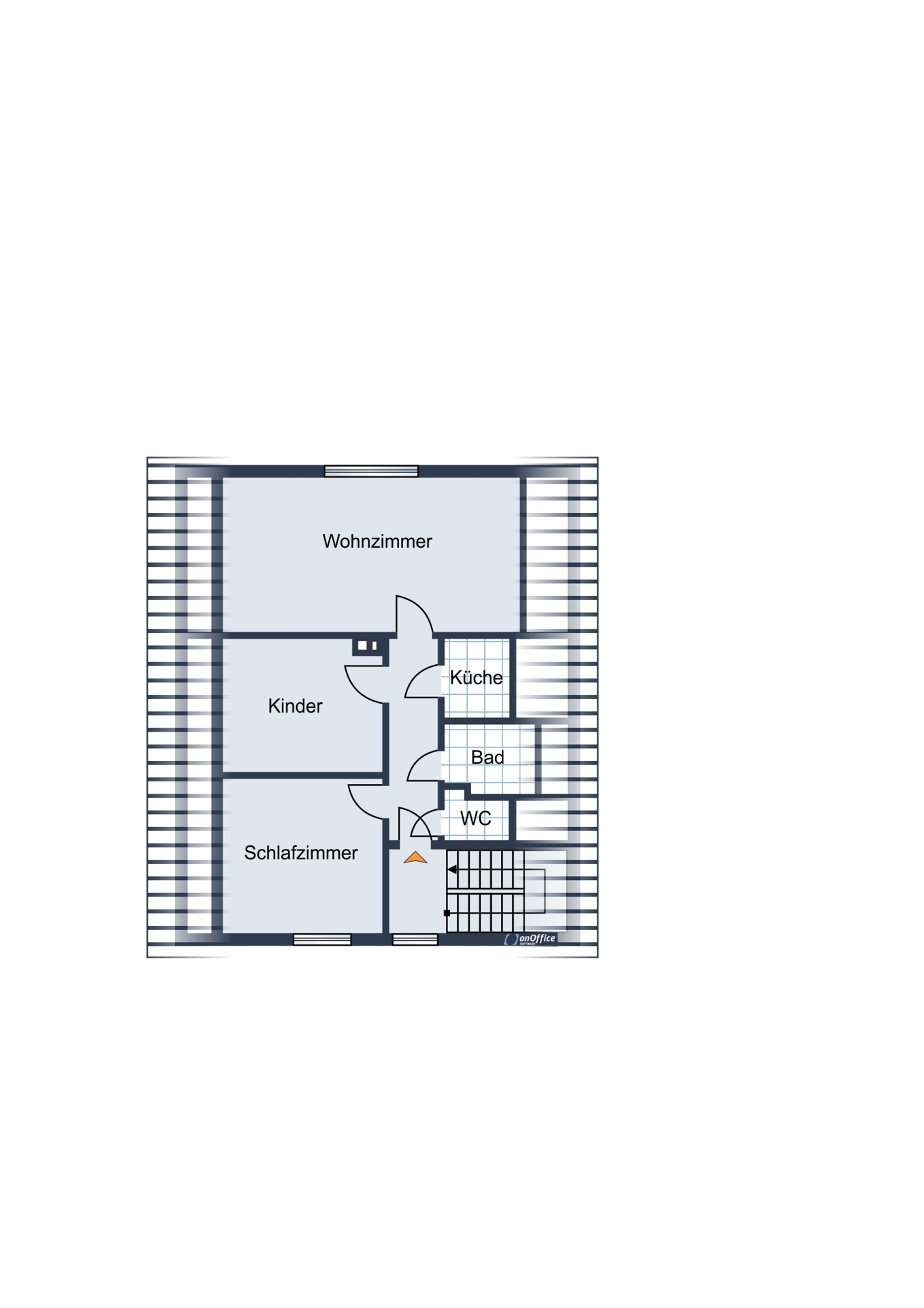
Wohnfläche
294 m2
Zimmer
10.0
separate WC
4.0
Grundstücksfläche
794 m2
Anzahl Stellplätze (gesamt)
4.0
Bauweise / Substanz
Bauweise
Massivhaus
Etagenanzahl der Immobilie
3
Wohneinheiten
3.0

Preisdaten

Preis
Kaufpreis
1.100.000 €
Courtage
Käufercourtage
4,76% vom Kaufpreis inkl. gesetzl. Mehrwertsteuer

Merkmale

Zimmer und Bereiche
Wasch- / Trocken­raum
Ausstattung und Technik
Einbau­küche
Sanitäre Einrichtung
Gäste WC
Stellplätze
Anzahl Stellplätze (gesamt)
4.0
Freiplatz
Anzahl
4.0
Garage
Anzahl
4.0

Energie

Energieausweis
Typ
Bedarfs­ausweis
EnEV
ab 01.05.2014 (gemäß EnEV 2014)
Energieausweis gültig bis
2027-09-12
Endenergiebedarf gemessen in kWh/(m²a)
191.60

A+ABCDEFGH

wesentlicher Energieträger
Öl
Energieeffizienz­klasse
F
Baujahr lt. Energieausweis
2007
Gebäudeart lt. Energieausweis
Wohngebäude
Befeuerungsart
Öl

Umgebung

Es wurden keine Daten angegeben.

Objektbeschreibung

Willkommen zu dieser außergewöhnlichen Gelegenheit in Böblingen – einem stilvoll renovierten Mehrfamilienhaus, das 1965 erbaut wurde und gut vermietet ist. Dieses beeindruckende Anwesen bietet eine großzügige Wohnfläche von 294 m², verteilt auf drei Etagen mit 3 Wohnungen, die sich durch ihre durchdachte Raumaufteilung und toller Ausstattung auszeichnen.

Das Haus befindet sich auf einem weitläufigen Grundstück von 794 m² und bietet somit reichlich Platz für vielseitige Nutzungsmöglichkeiten. Mit insgesamt 10 Zimmern ist dieses Mehrfamilienhaus ideal für Großfamilien oder als Anlageobjekt mit mehreren Wohneinheiten. Jedes Detail wurde mit Sorgfalt ausgewählt, um Komfort und Funktionalität zu gewährleisten.

Zu den Annehmlichkeiten gehören Einbauküchen in den Wohnungen. Ein besonderes Highlight ist der riesige Garten, der ideale Möglichkeiten zur Entspannung oder zum geselligen Beisammensein mit Familie und Freunden bietet. Zusätzlich lädt ein Balkon im OG an schönen Tagen zum Verweilen im Freien ein.

Mit seiner vorteilhaften Lage in Böblingen bietet dieses Objekt nicht nur eine komfortable Wohnsituation, sondern auch eine hervorragende Anbindung an alle wichtigen Infrastrukturen und Dienstleistungen. Sichern Sie sich die Chance, ein Teil dieser lebendigen Gemeinde zu werden, indem Sie in dieses vielseitige Mehrfamilienhaus investieren. Wir laden Sie herzlich zu einer Besichtigung ein, um alle Facetten dieser einzigartigen Immobilie zu entdecken.

Das Haus ist kpl. vermietet:
Kaltmiete 39.000,- Euro

Ausstattung

- Einbauküchen
- Balkon
- Garten
- 3 Garagen
- 3 Stellplätze im Freien vor den Garagen
- Ölzentralheizung

Lage

Dieses ansprechende Mehrfamilienhaus befindet sich in einer ruhigen und begehrten Wohngegend von Böblingen, einer charmanten Stadt in der Region Stuttgart. Die Lage überzeugt durch ihre perfekte Kombination aus urbaner Nähe und naturnahem Ambiente. In unmittelbarer Umgebung finden Sie eine Vielzahl an Annehmlichkeiten, darunter Einkaufsmöglichkeiten, Schulen und Freizeitangebote. Die gute Anbindung an den öffentlichen Nahverkehr und die Nähe zur Autobahn machen diese Lage ideal für Pendler und ermöglichen eine schnelle Erreichbarkeit der umliegenden Städte und der Stuttgarter Innenstadt. Zudem lädt die reizvolle Umgebung mit ihren Parks und Grünflächen zu erholsamen Spaziergängen und vielfältigen Freizeitaktivitäten ein. Dabei bietet die Lage des Hauses einen ausgewogenen Rückzugsort, der dennoch alle urbanen Vorzüge bietet.
Lade Orte in der Umgebung

Sonstiges

Da wir uns bei allen Angaben auf die Informationen Dritter stützen müssen, können wir keine Gewähr für deren Richtigkeit und Vollständigkeit übernehmen.

Bitte haben Sie Verständnis dafür, dass wir nur Anfragen mit vollständiger Adressangabe und erreichbarer Handynummer bearbeiten können.

Nachdem Ihre Anfrage per E-Mail bei uns eingegangen ist, werden wir uns mit Ihnen zur Abstimmung eines Besichtigungstermins in Verbindung setzen. Bitte nennen Sie deshalb in Ihrer E-Mail eine Tel.-Nr., unter der wir Sie sicher erreichen können.

Widerrufsbelehrung für Verbraucher:
Sie haben das Recht, binnen vierzehn Tagen ohne Angabe von Gründen diesen Vertrag zu widerrufen. Die Widerrufsfrist beträgt vierzehn Tage ab dem Tag des Vertragsabschlusses.

Um Ihr Widerrufsrecht auszuüben, müssen Sie uns (Königskinder Immobilien GmbH, Königstraße 62, 70173 Stuttgart, Tel: 0711 4005440, Fax: 0711 40054433, info@koenigskinder.de) mittels einer eindeutigen Erklärung (z. B. ein mit der Post versandter Brief, Telefax oder E-Mail) über Ihren Entschluss, diesen Vertrag zu widerrufen, informieren.

Zur Wahrung der Widerrufsfrist reicht es aus, dass Sie die Mitteilung über die Ausübung des Widerrufsrechts vor Ablauf der Widerrufsfrist absenden.

Folgen des Widerrufs:
Wenn Sie diesen Vertrag widerrufen, haben wir Ihnen alle Zahlungen, die wir von Ihnen erhalten haben, unverzüglich und spätestens binnen vierzehn Tagen ab dem Tag zurückzuzahlen, an dem die Mitteilung über Ihren Widerruf dieses Vertrags bei uns eingegangen ist. Für diese Rückzahlung verwenden wir dasselbe Zahlungsmittel, das Sie bei der ursprünglichen Transaktion eingesetzt haben, es sei denn, mit Ihnen wurde ausdrücklich etwas anderes vereinbart; in keinem Fall werden Ihnen wegen dieser Rückzahlung Entgelte berechnet.

Haben Sie verlangt, dass die Dienstleistungen während der Widerrufsfrist beginnen soll, so haben Sie uns einen angemessenen Betrag zu zahlen, der dem Anteil der bis zu dem Zeitpunkt, zu dem Sie uns von der Ausübung des Widerrufsrechts hinsichtlich dieses Vertrags unterrichten, bereits erbrachten Dienstleistungen im Vergleich zum Gesamtumfang der im Vertrag vorgesehenen Dienstleistungen entspricht.

Anbieterdaten

Nandolf Haupt

Ansprech­partner

Nandolf Haupt

Ihre Nachricht an Königskinder Immobilien GmbH

Ihr Ansprechpartner: Nandolf Haupt

Mit (*) gekennzeichnete Felder sind Pflichtangaben.