Kapitalanlage mit Perspektive – Mehrfamilienhaus mit 5 %+ Rendite
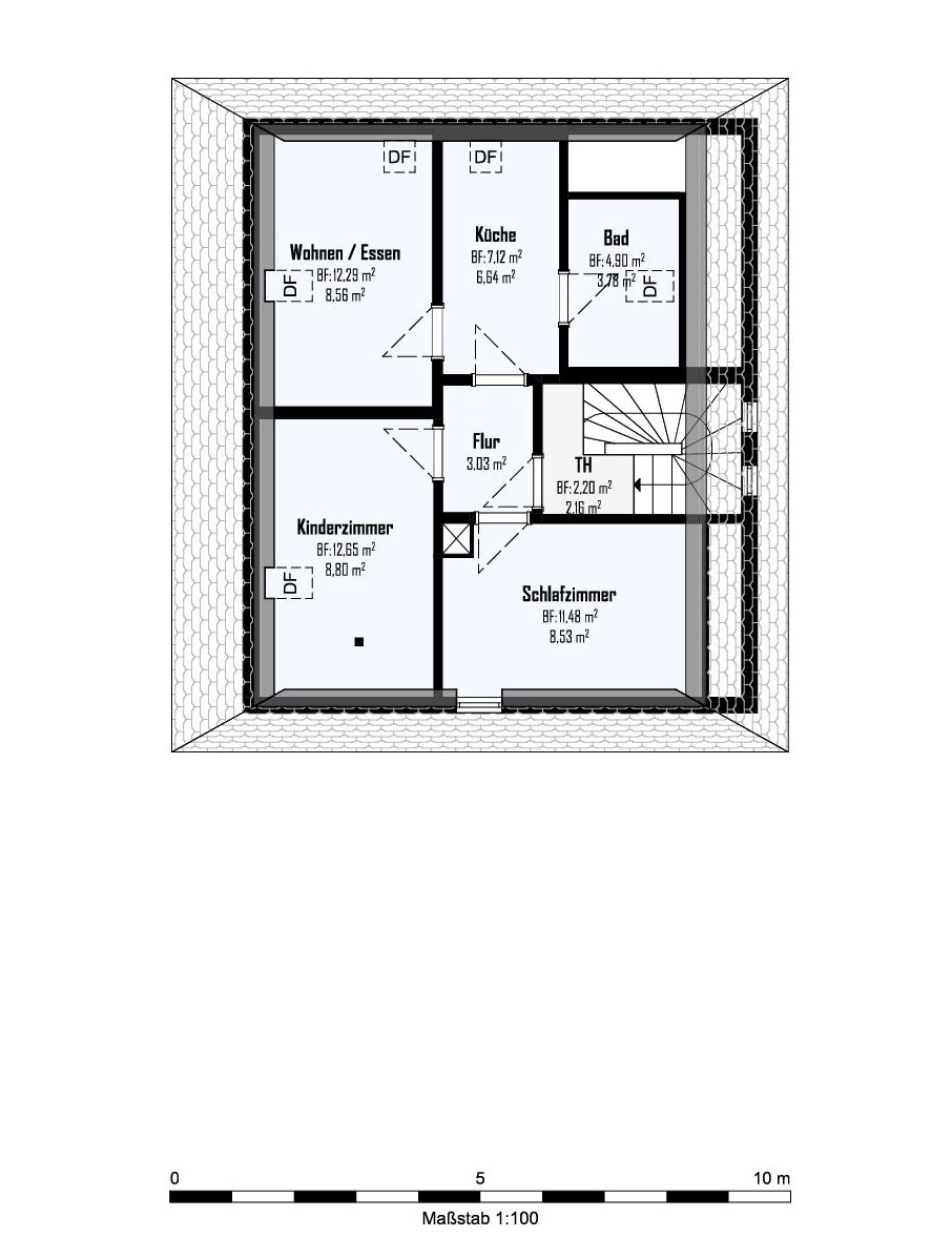
FlurBildHelle Tageslichtbäder mit komfortabler HandtuchheizungGroßzügig geschnittene Wohn- und Schlafräume. Küche 1. OGKüchenmöbel und -ausstattung mitenthaltenWohnraum 1.OGBildAussichtsreiche AusblickeHistorischer Charme im TreppenhausModerne PelletheizungGewölbekellerFreisitzGemeinschaftsgartenWillkommen im blauen Haus!Separate Wohnungen in EG, 1. OG und DGMärchenhafte Umgebung samt Schloss und VergnügungsparkGrundriss EGGrundriss OGGrundriss DGFrische Fassade und energetisch saniert.
Eckdaten
Zimmer
Wohnfl.
Grundst.
Kaufpreis
Zimmer
Wohnfl.
Grundst.
599000.0€ Kaufpreis
Basisdaten
Objektnummer
Immopark ID
IP-310469
Objekt ID
LDW1.BSC.10530
Adresse
74389 Cleebronn
Ort
74389 Cleebronn
Fakten und Zahlen
Haustyp
Mehrfamilienhaus
Vermarktungsart
Kauf
Nutzungsart
wohnen
Verkaufsstatus
offen
Baujahr
1936
Kerndaten
Wohnfläche
181 m2
Zimmer
9.0
Wohn- und Schlafzimmer
3.0
Schlafzimmer
3.0
Badezimmer
3.0
separate WC
2.0
Gesamtfläche
200,75 m2
Nutzfläche
7,02 m2
Vermietbare Fläche
181 m2
Grundstücksfläche
267 m2
Anzahl Stellplätze (gesamt)
2.0
Bauweise / Substanz
Objektzustand
modernisiert
Bauweise
Massivhaus
Etagenanzahl der Immobilie
3
Wohneinheiten
3.0
Verfügbarkeit
Verfügbar ab
Sofort
Preisdaten
Preis
Kaufpreis
599.000 €
Warmmiete
2.960 €
Mietpreis pro Quadratmeter
16,35 €
Pauschalmiete
2.960 €
Preis Zeiteinheit
pro Monat
Gesamtbelastungs-Brutto
2.960 €
Courtage
Käufercourtage
jeweils 3,57 % inkl. MwSt. vom Käufer und Verkäufer auf den beurkundeten Kaufpreis zu zahlen
Merkmale
Zimmer und Bereiche
Typ
Voll unterkellert
Zimmer und Räume
Schlafzimmer
Zimmer und Räume
Wasch- / Trockenraum
Sanitäre Einrichtung
Sanitäre Einrichtung
Gäste WC
Besondere Merkmale
Besondere Merkmale
WG-geeignet
Besondere Merkmale
Gewerbliche Nutzung
Besondere Merkmale
Nutzung als Ferienimmobilie
Stellplätze
Anzahl Stellplätze (gesamt)
2.0
Stellplatzdetails
Freiplatz
Anzahl
2.0
Grundstück und Lage
Grundstück und Lage
Gewerbliche Nutzung
Energie
Energieausweis
Typ
Bedarfsausweis
EnEV
ab 01.05.2014 (gemäß EnEV 2014)
Energieausweis gültig bis
2035-12-05
Endenergiebedarf gemessen in kWh/(m²a)
336.80
A+ABCDEFGH
wesentlicher Energieträger
Holz
Baujahr lt. Energieausweis
2015
Gebäudeart lt. Energieausweis
Wohngebäude
Umgebung
Es wurden keine Daten angegeben.
Objektbeschreibung
Dieses charmante Dreifamilienhaus verbindet solide Substanz mit einem angenehmen Wohngefühl – und bietet genau das Potenzial, das viele Kapitalanleger heute suchen. Die wichtigsten und kostenintensiven Sanierungen wurden bereits erledigt: Heizung, Bäder, Küchen, Elektrik, Wasserleitungen, Wände und Böden wurden 2015/2016 erneuert. Das Dach und die Fassade wurden 2022 modernisiert und sorgen für einen energetisch zeitgemäßen Stand. Ebenso erfolgte der Ausbau des Dachgeschosses als dritte Wohneinheit im Jahr 2022.
Im Inneren wartet das Haus darauf, mit überschaubaren Schönheitsreparaturen wieder in frischem Glanz zu erstrahlen.
Die drei gut geschnittenen Wohneinheiten sind vollständig vermietet und ermöglichen sofortige Einnahmen. Dank der Lage im Herzen Cleebronns, unweit von Freizeitpark Tripsdrill und in idealer Distanz zu Heilbronn und Ludwigsburg, sind die Wohnungen sowohl für Pendler als auch für Feriengäste begehrt.
Ein gepflegter Hof mit Stellplätzen, ein gemeinschaftlich nutzbarer Garten sowie ein wunderschöner alter Gewölbekeller runden das Angebot ab und verleihen dem Haus seinen unverwechselbaren Charakter. Kurz gesagt: ein Objekt mit Charme, Perspektive und langfristigem Mehrwert.
Ausstattung
- drei Wohneinheiten (EG, 1. OG, DG) mit gut nutzbaren Grundrissen - moderne Pelletheizung inklusive frisch befülltem Pellet-Tank - helle Tageslichtbäder in moderner Ausführung (Walk-in-Dusche, Handtuchheizung, großformatige Fliesen) - Stellplätze im Hof, Freisitz und gemeinschaftlicher Garten - Gewölbekeller ideal für Wein- oder Vorratslagerung, zusätzlicher Wasch- und Abstellraum - ruhige und dennoch zentrale Lage in Cleebronn, gute Anbindung Richtung Heilbronn und Ludwigsburg - Vollvermietet – stabile Erträge ab dem ersten Tag
Lage
Die Lage des Objekts in Cleebronn bietet eine seltene Kombination aus Ruhe, Natur und hervorragender Anbindung. Der charmante Weinort am Fuße des Michaelsbergs ist bekannt für seine hohe Lebensqualität, die gewachsene Dorfstruktur und die unmittelbare Nähe zu Wäldern, Weinbergen und weitläufigen Spazierwegen.
Gleichzeitig profitieren Bewohner von der Nähe zu den wirtschaftsstarken Zentren Heilbronn und Ludwigsburg. Beide Städte sind schnell erreichbar und machen das Haus besonders attraktiv für Pendler, die eine ruhige Wohnlage schätzen, ohne auf kurze Wege zum Arbeitsplatz verzichten zu müssen. Die Infrastruktur in der Region ist hervorragend ausgebaut – Einkaufsmöglichkeiten, Schulen, medizinische Versorgung und öffentliche Verkehrsanbindungen sind bequem erreichbar.
Ein weiterer Pluspunkt ist das breite Freizeitangebot: Der renommierte Erlebnispark Tripsdrill befindet sich praktisch vor der Haustür und ist ein Magnet für Familien, Besucher und auch potenzielle Feriengäste. Die umliegenden Weinbaugebiete, Badeseen und zahlreichen Wander- und Radwege machen Cleebronn zusätzlich zu einem idealen Ausgangspunkt für Natur- und Freizeiterlebnisse.
Insgesamt verbindet die Lage ländliche Idylle mit einer dynamischen Wirtschaftsregion – ein attraktiver Standort für Mieter, Familien und Kapitalanleger gleichermaßen.
Lade Orte in der Umgebung
Sonstiges
Da wir uns bei allen Angaben auf die Informationen Dritter stützen müssen, können wir keine Gewähr für deren Richtigkeit und Vollständigkeit übernehmen.
Bitte haben Sie Verständnis dafür, dass wir nur Anfragen mit vollständiger Adressangabe und erreichbarer Handynummer bearbeiten können.
Nachdem Ihre Anfrage per E-Mail bei uns eingegangen ist, werden wir uns mit Ihnen zur Abstimmung eines Besichtigungstermins in Verbindung setzen. Bitte nennen Sie deshalb in Ihrer E-Mail eine Tel.-Nr., unter der wir Sie sicher erreichen können.
Widerrufsbelehrung für Verbraucher: Sie haben das Recht, binnen vierzehn Tagen ohne Angabe von Gründen diesen Vertrag zu widerrufen. Die Widerrufsfrist beträgt vierzehn Tage ab dem Tag des Vertragsabschlusses.
Um Ihr Widerrufsrecht auszuüben, müssen Sie uns (Königskinder Immobilien GmbH, Königstraße 62, 70173 Stuttgart, Tel: 0711 4005440, Fax: 0711 40054433, info@koenigskinder.de) mittels einer eindeutigen Erklärung (z. B. ein mit der Post versandter Brief, Telefax oder E-Mail) über Ihren Entschluss, diesen Vertrag zu widerrufen, informieren.
Zur Wahrung der Widerrufsfrist reicht es aus, dass Sie die Mitteilung über die Ausübung des Widerrufsrechts vor Ablauf der Widerrufsfrist absenden.
Folgen des Widerrufs: Wenn Sie diesen Vertrag widerrufen, haben wir Ihnen alle Zahlungen, die wir von Ihnen erhalten haben, unverzüglich und spätestens binnen vierzehn Tagen ab dem Tag zurückzuzahlen, an dem die Mitteilung über Ihren Widerruf dieses Vertrags bei uns eingegangen ist. Für diese Rückzahlung verwenden wir dasselbe Zahlungsmittel, das Sie bei der ursprünglichen Transaktion eingesetzt haben, es sei denn, mit Ihnen wurde ausdrücklich etwas anderes vereinbart; in keinem Fall werden Ihnen wegen dieser Rückzahlung Entgelte berechnet.
Haben Sie verlangt, dass die Dienstleistungen während der Widerrufsfrist beginnen soll, so haben Sie uns einen angemessenen Betrag zu zahlen, der dem Anteil der bis zu dem Zeitpunkt, zu dem Sie uns von der Ausübung des Widerrufsrechts hinsichtlich dieses Vertrags unterrichten, bereits erbrachten Dienstleistungen im Vergleich zum Gesamtumfang der im Vertrag vorgesehenen Dienstleistungen entspricht.