Kompakt & zentral – kleines Appartement mit großem Potenzial

Eckdaten

 Zimmer
 Wohnfl.
 Grundst.
Kaufpreis
 Zimmer
 Wohnfl.
Grundst.

Kaufpreis

Basisdaten

Objektnummer
Immopark ID
IP-294697
Objekt ID
LDW1.BSC.10189
Adresse
Ort
71522 Backnang
Fakten und Zahlen
Wohnungstyp
Etage
Vermarktungsart
Kauf
Nutzungsart
wohnen
Verkaufsstatus
offen
Baujahr
1988
Kerndaten
Wohnfläche
40 m2
Zimmer
1.0
Badezimmer
1.0
Anzahl Stellplätze (gesamt)
1.0
Bauweise / Substanz
Objektzustand
gepflegt
Bauweise
Massivhaus

Preisdaten

Preis
Kaufpreis
145.000 €
Warmmiete
580 €
Pauschalmiete
580 €
Preis Zeiteinheit
pro Monat
Gesamtbelastungs-Brutto
580 €
Weitere Kosten
Hausgeld
159,50 €
Courtage
Käufercourtage
jeweils 3,57 % inkl. MwSt. auf den beurkundeten Kaufpreis

Merkmale

Zimmer und Bereiche
Wasch- / Trocken­raum
Stellplätze
Anzahl Stellplätze (gesamt)
1.0
Tiefgarage
Anzahl
1.0

Energie

Energieausweis
Typ
Verbrauchs­ausweis
EnEV
ab 01.05.2014 (gemäß EnEV 2014)
Energieausweis gültig bis
2029-04-01
Energie­verbrauchs­kennwert gemessen in kWh/(m²a)
155.61

A+ABCDEFGH

Energieeffizienz­klasse
E
Baujahr lt. Energieausweis
1988
Gebäudeart lt. Energieausweis
Wohngebäude

Umgebung

Es wurden keine Daten angegeben.

Objektbeschreibung

Dieses 40 m² große, zentral gelegene Appartement in Backnang bietet eine solide Grundlage für alle, die sich gerne ihr Zuhause nach eigenen Vorstellungen gestalten möchten – oder eine attraktive Kapitalanlage suchen. Die Wohnung ist aktuell vermietet und eignet sich daher auch ideal für Investoren, die eine zentrale Lage mit guter Vermietbarkeit zu schätzen wissen.

Ausstattung

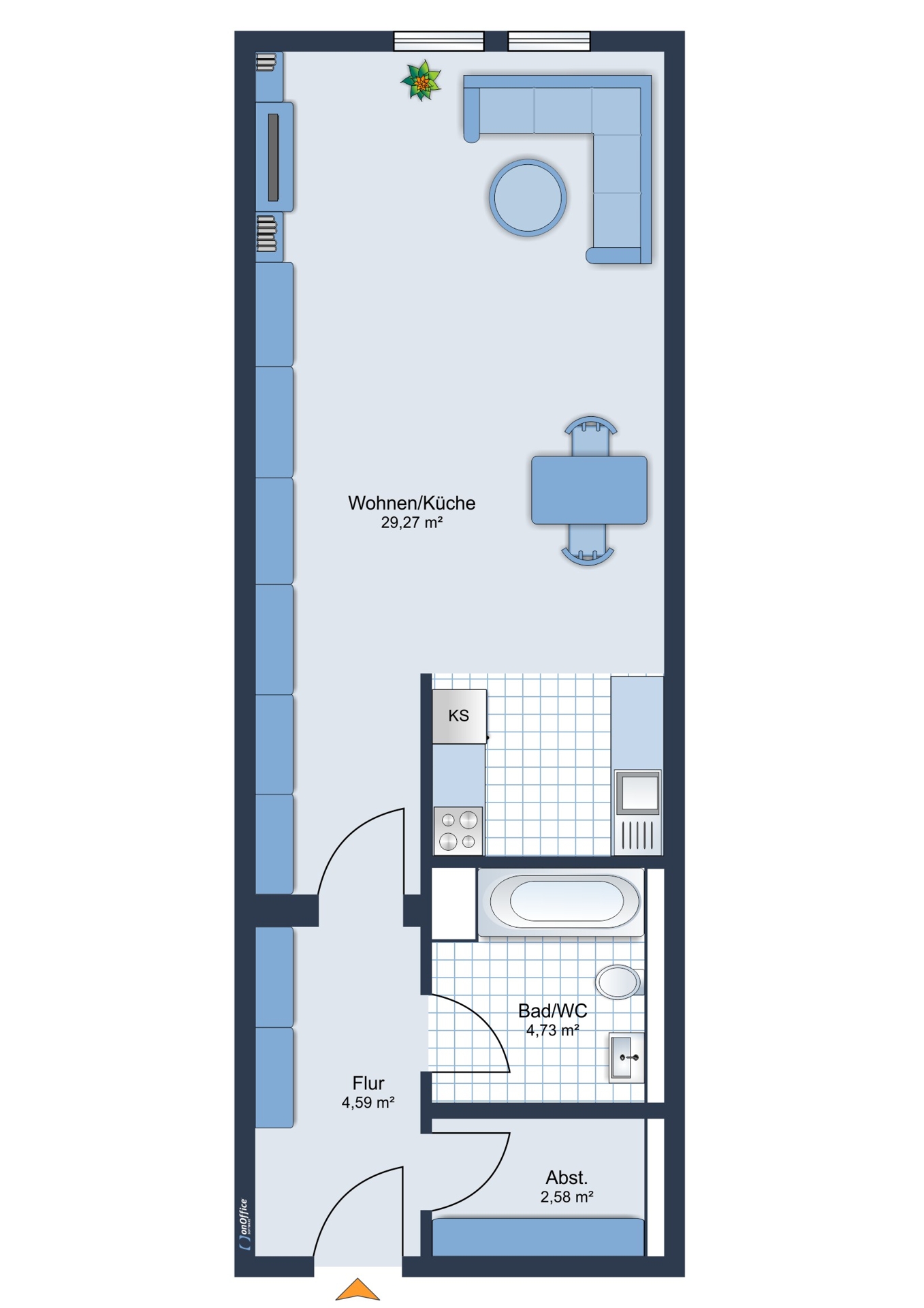
Das geräumige 1-Zimmer-Appartement liegt im ersten Stock eines gepflegten Mehrfamilienhauses mit 13 Einheiten. Aus dem abgeschlossenen Flur des Appartements gelangt man über jeweils eine Tür in den dazugehörigen Abstellraum, das Badezimmer mit Badewanne und das Wohn-/Esszimmer mit Küchennische. Es verfügt zudem über einen Waschraum mit eigenem Waschmaschinenanschluss sowie einen Tiefgaragenstellplatz – ein echter Pluspunkt in dieser städtischen Lage. Das Appartement ist bequem über einen Fahrstuhl zu erreichen.

Die Eigentumswohnung befindet sich in einem 1988 erbauten Haus und wird per Zentralheizung beheizt. Im Jahr 2015 wurde die Heizungsanlage erneuert.

Lage

Die Aspacher Straße liegt direkt vor der Tür. Einkaufsmöglichkeiten, Bus- und Bahnanbindungen sowie gute Verkehrswege für Autofahrer befinden sich in unmittelbarer Umgebung – hier profitieren Sie von einer hervorragenden Infrastruktur.

Backnang vereint die Vorteile einer gewachsenen Kleinstadt mit der Nähe zur Metropolregion Stuttgart. Die Stadt punktet mit einer ausgezeichneten Anbindung an den öffentlichen Nahverkehr (S-Bahn-Linien S3 und S4), den DB-Fernverkehr und die Bundesstraßen B 14 und B 328 – ein Standort mit Perspektive für Pendler und Großstadtflüchter gleichermaßen.

Für Kapitalanleger bietet Backnang ein stabiles Mietniveau und eine konstante Nachfrage, insbesondere bei Singles, Berufseinsteigern und Pendlern. Auch Individualisten finden hier Raum für persönliche Entfaltung – mit kurzen Wegen zu Einkaufsmöglichkeiten, Gastronomie und Freizeitangeboten. Die Mischung aus urbanem Alltag und naturnaher Umgebung macht Backnang zu einer attraktiven Adresse mit Entwicklungspotenzial.
Lade Orte in der Umgebung

Sonstiges

Da wir uns bei allen Angaben auf die Informationen Dritter stützen müssen, können wir keine Gewähr für deren Richtigkeit und Vollständigkeit übernehmen.

Bitte haben Sie Verständnis dafür, dass wir nur Anfragen mit vollständiger Adressangabe und erreichbarer Handynummer bearbeiten können.

Nachdem Ihre Anfrage per E-Mail bei uns eingegangen ist, werden wir uns mit Ihnen zur Abstimmung eines Besichtigungstermins in Verbindung setzen. Bitte nennen Sie deshalb in Ihrer E-Mail eine Tel.-Nr., unter der wir Sie sicher erreichen können.

Widerrufsbelehrung für Verbraucher:
Sie haben das Recht, binnen vierzehn Tagen ohne Angabe von Gründen diesen Vertrag zu widerrufen. Die Widerrufsfrist beträgt vierzehn Tage ab dem Tag des Vertragsabschlusses.

Um Ihr Widerrufsrecht auszuüben, müssen Sie uns (Königskinder Immobilien GmbH, Königstraße 62, 70173 Stuttgart, Tel: 0711 4005440, Fax: 0711 40054433, info@koenigskinder.de) mittels einer eindeutigen Erklärung (z. B. ein mit der Post versandter Brief, Telefax oder E-Mail) über Ihren Entschluss, diesen Vertrag zu widerrufen, informieren.

Zur Wahrung der Widerrufsfrist reicht es aus, dass Sie die Mitteilung über die Ausübung des Widerrufsrechts vor Ablauf der Widerrufsfrist absenden.

Folgen des Widerrufs:
Wenn Sie diesen Vertrag widerrufen, haben wir Ihnen alle Zahlungen, die wir von Ihnen erhalten haben, unverzüglich und spätestens binnen vierzehn Tagen ab dem Tag zurückzuzahlen, an dem die Mitteilung über Ihren Widerruf dieses Vertrags bei uns eingegangen ist. Für diese Rückzahlung verwenden wir dasselbe Zahlungsmittel, das Sie bei der ursprünglichen Transaktion eingesetzt haben, es sei denn, mit Ihnen wurde ausdrücklich etwas anderes vereinbart; in keinem Fall werden Ihnen wegen dieser Rückzahlung Entgelte berechnet.

Haben Sie verlangt, dass die Dienstleistungen während der Widerrufsfrist beginnen soll, so haben Sie uns einen angemessenen Betrag zu zahlen, der dem Anteil der bis zu dem Zeitpunkt, zu dem Sie uns von der Ausübung des Widerrufsrechts hinsichtlich dieses Vertrags unterrichten, bereits erbrachten Dienstleistungen im Vergleich zum Gesamtumfang der im Vertrag vorgesehenen Dienstleistungen entspricht.

Anbieterdaten

Barbara Schenk

Ansprech­partner

Barbara Schenk

Ihre Nachricht an Königskinder Immobilien GmbH

Ihr Ansprechpartner: Barbara Schenk

Mit (*) gekennzeichnete Felder sind Pflichtangaben.