Wohn- und Geschäftshaus

Eckdaten

 Zimmer
 Wohnfl.
 Grundst.
Kaufpreis
 Zimmer
 Wohnfl.
 Grundst.

Kaufpreis

Basisdaten

Objektnummer
Immopark ID
IP-307061
Objekt ID
350051059-2771
Adresse
Ort
67269 Grünstadt / Asselheim
Fakten und Zahlen
Vermarktungsart
Kauf
Nutzungsart
wohnen
Verkaufsstatus
offen
Baujahr
1912
Kerndaten
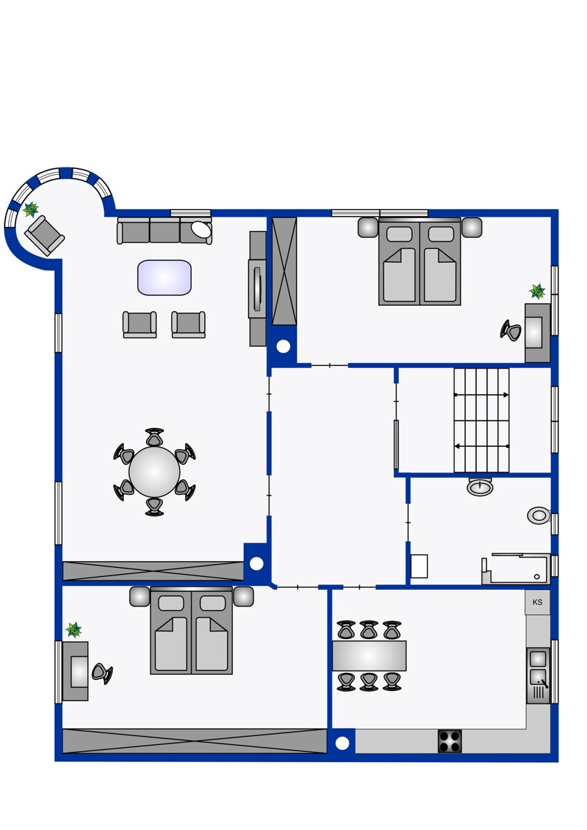
Wohnfläche
300 m2
Zimmer
9.0
Badezimmer
3.0
separate WC
1.0
Grundstücksfläche
270 m2
Anzahl Stellplätze (gesamt)
4.0
Bauweise / Substanz
Objektzustand
gepflegt
Etagenanzahl der Immobilie
3

Preisdaten

Preis
Kaufpreis
830.000 €
Courtage
Käufercourtage
3,57

Merkmale

Zimmer und Bereiche
Voll unterkellert
Sanitäre Einrichtung
Gäste WC
Stellplätze
Anzahl Stellplätze (gesamt)
4.0
Freiplatz
Anzahl
2.0
Carport
Anzahl
2.0

Energie

Energieausweis
Typ
Bedarfs­ausweis
EnEV
ab 01.05.2014 (gemäß EnEV 2014)
Energieausweis gültig bis
2025-12-04
Endenergiebedarf gemessen in kWh/(m²a)
282.00

A+ABCDEFGH

wesentlicher Energieträger
Gas
Energieeffizienz­klasse
H
Baujahr lt. Energieausweis
2005
Gebäudeart lt. Energieausweis
Wohngebäude
Befeuerungsart
Gas

Umgebung

Es wurden keine Daten angegeben.

Objektbeschreibung

Beim Betreten dieses ansprechenden Wohn- und Geschäftshauses werden Sie von einem
großzügigen Eingangsbereich empfangen, der sowohl Bewohner als auch Besucher
willkommen heißt. 
Das Haus bietet eine beeindruckende Wohnfläche von ca. 300 m², die sich ideal für vielfältige Nutzungsmöglichkeiten eignet. 
Vom Eingangsbereich aus gelangen Sie in die verschiedenen Wohnbereiche, die durch ihre durchdachte Raumaufteilung überzeugen. 
Die Immobilie steht auf einem ca. 270 m² großen Grundstück, das ausreichend Platz für individuelle Gestaltungsideen bietet. 
Ob für private oder geschäftliche Zwecke, die Fläche lässt sich vielseitig nutzen
und anpassen.
Ein weiterer Vorteil ist der vorhandene Keller, der zusätzlichen Stauraum bietet und die Funktionalität des Hauses erweitert. 
Mit einem Kaufpreis von 830.000 € stellt dieses Objekt eine attraktive Investitionsmöglichkeit dar.

Ausstattung

3 Wohneinheiten
1 Gewerbe/Kiosk - zur Zeit nicht genutzt
4 Stellplätze

Speicher Ausbaureserve ca. 30 qm

Lage

Die Immobilie befindet sich in einer attraktiven Lage in Grünstadt. Die Umgebung bietet eine hervorragende Infrastruktur, die den Alltag angenehm und unkompliziert gestaltet. Für den täglichen Bedarf stehen Ihnen Supermärkte wie REWE und ALDI Süd in einer Entfernung von etwa 700 Metern zur Verfügung. Auch eine Drogerie ist in ca. 15 Gehminuten erreichbar.

Die Anbindung an den öffentlichen Nahverkehr ist ausgezeichnet. Der Bahnhof Grünstadt Nord ist nur rund 600 Meter entfernt, was eine schnelle Verbindung in die umliegenden Städte ermöglicht. Für Autofahrer ist die Autobahnauffahrt A6 in etwa 2,5 Kilometern erreichbar, was eine zügige Anbindung an das überregionale Straßennetz sicherstellt.

Für Familien mit Kindern sind mehrere Kindergärten und Schulen in der Nähe vorhanden. Für kulinarische Genüsse sorgen zahlreiche Restaurants und Cafés in der Umgebung.

Die medizinische Versorgung ist durch das nahegelegene Kreiskrankenhaus Grünstadt und mehrere Apotheken gesichert.

Die Lage der Immobilie bietet somit eine perfekte Balance zwischen städtischem Komfort und naturnaher Umgebung, ideal für alle, die eine ruhige Wohnlage mit guter Anbindung suchen.
Lade Orte in der Umgebung

Anbieterdaten

Alfred Hehr

Ansprech­partner

Alfred Hehr

Ihre Nachricht an RE/MAX Classic Ludwigshafen - N. H. Immobilien Vertriebs GmbH

Ihr Ansprechpartner: Alfred Hehr

Mit (*) gekennzeichnete Felder sind Pflichtangaben.